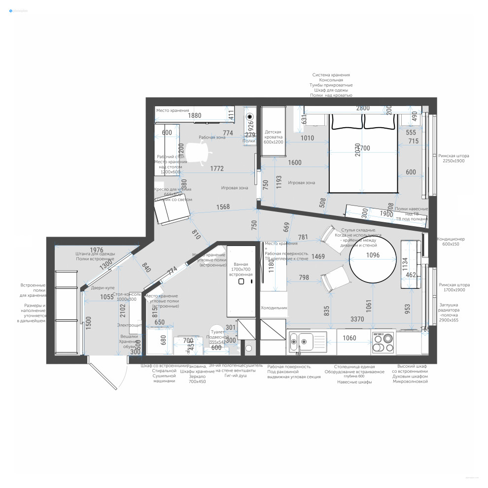
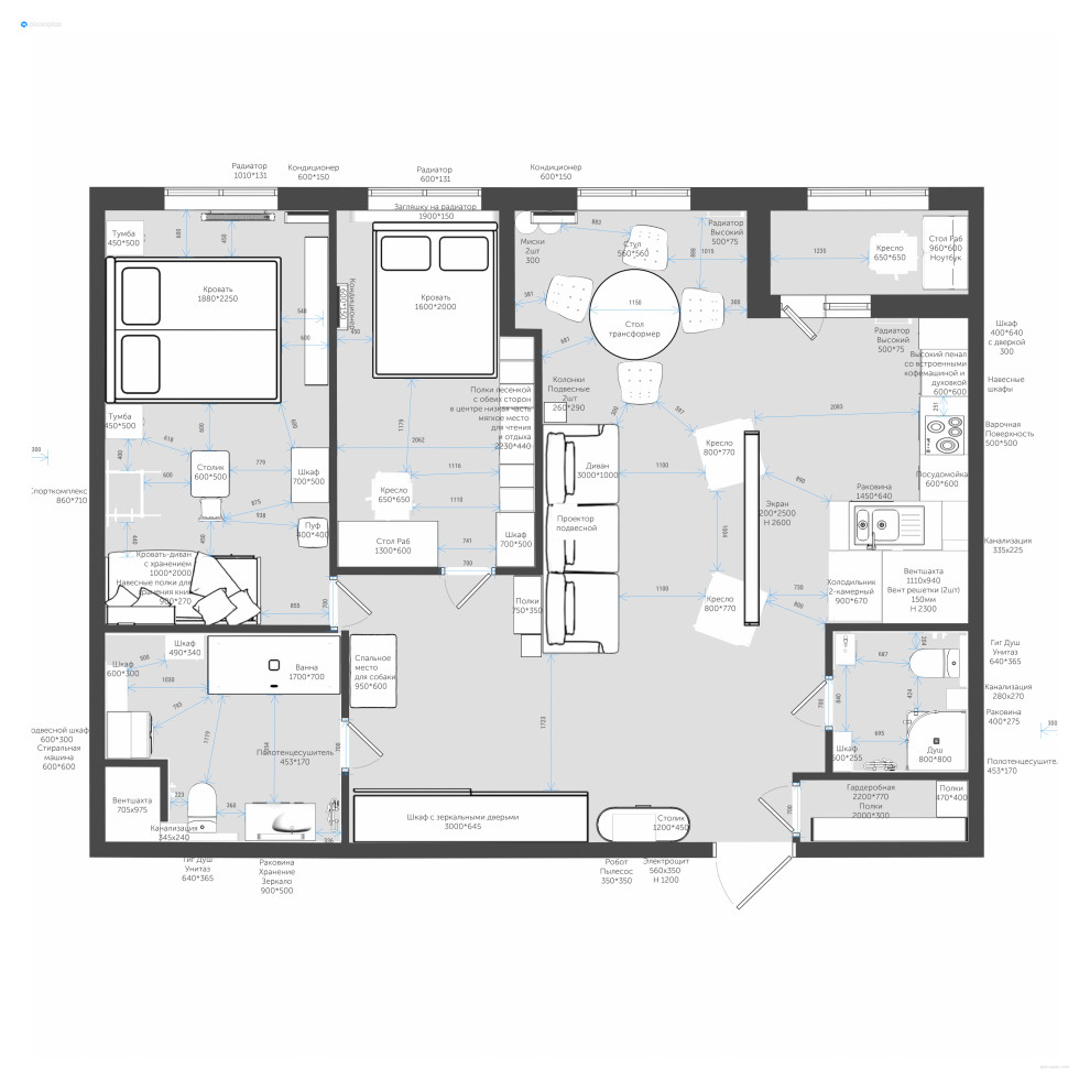
Планировки
В данном альбоме представлены различные варианты планировочных решений без привязки к конкретным проектам. . . Конкретные проекты и их планировки из этого альбома так же есть в профиле
Год реализации: 2021
Стоимость проектирования: 34 999 ₽
10 фотографий











