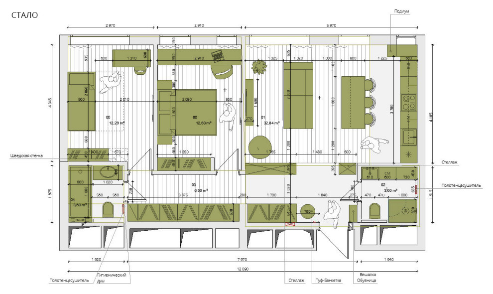
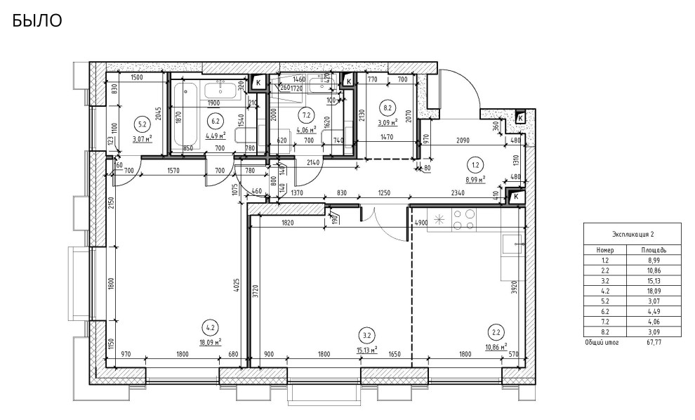
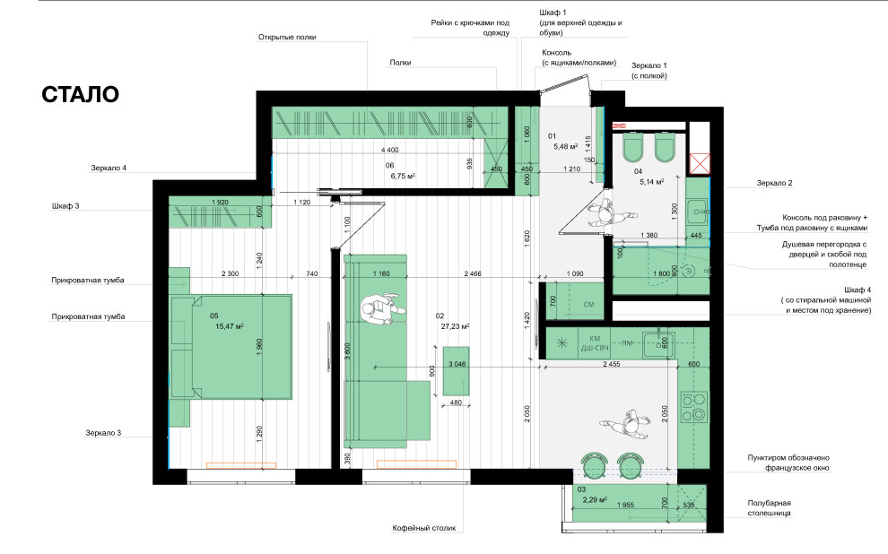
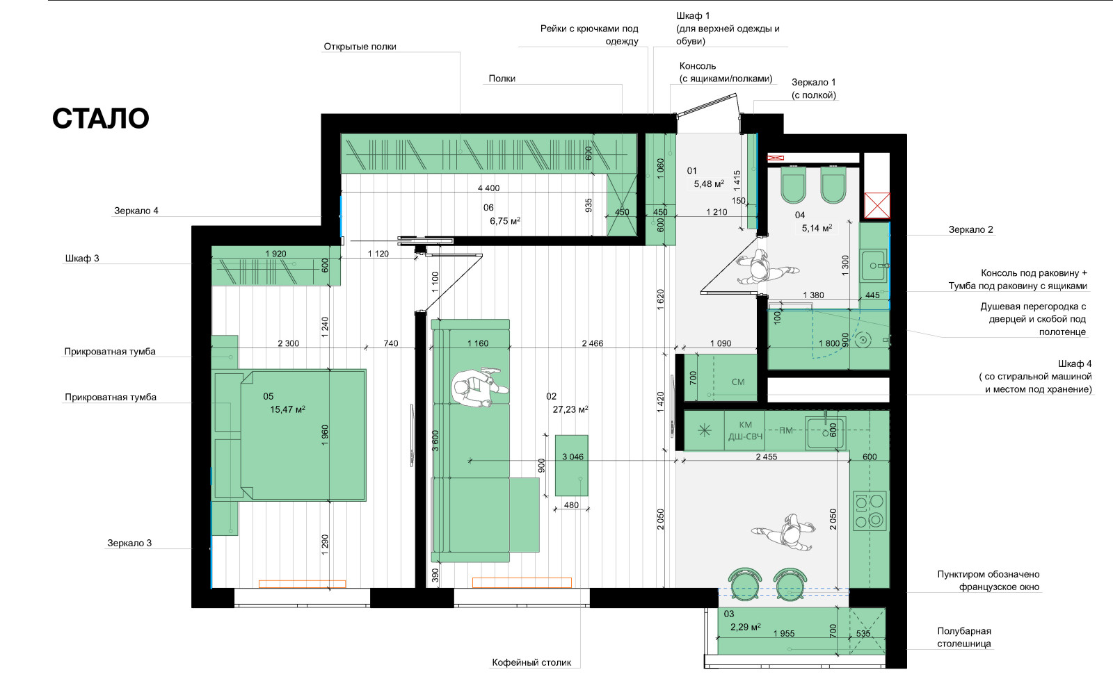
ПЛАНИРОВКИ
В альбоме примеры моих перепланировок, которые были выполнены в соответствии с нормами и правилами о перепланировках и с учётом индивидуальных пожеланий моих заказчиков
Год реализации: 2019
Стоимость проектирования: 34 999 ₽
г. Москва, набережная Марка Шагала, Южный административный округ
8 фотографий









