logo

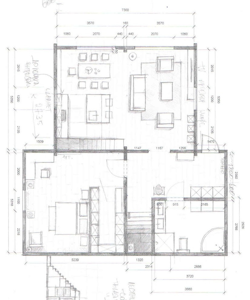
Планировка загородного дома для молодой пары

Год реализации: 2016
Стоимость проектирования: 34 999
photo

0 фотографий

Фоновое изображение профиля Александр
Фото профиля Александр

Александр

Дизайнеры интерьера

Контакты

г. Москва