Планировка ресторана "Черный. Белый. Золотой"
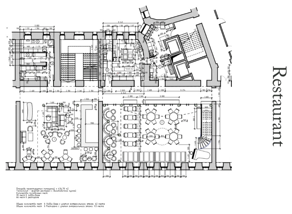
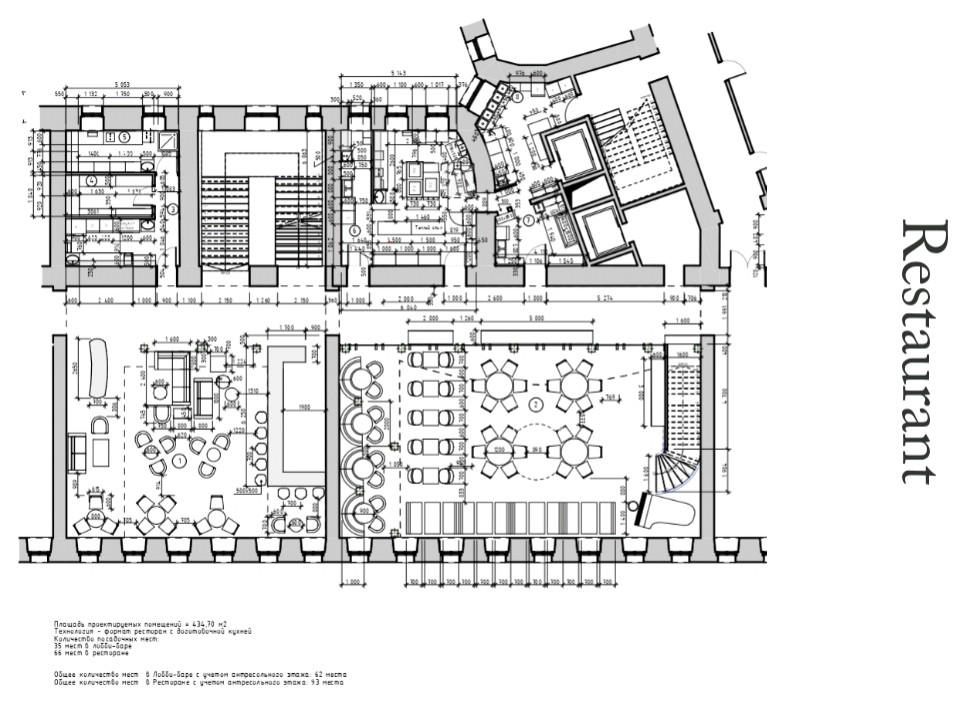
✨ Идеальная планировка ресторана- это сочетание стиля и функциональности в каждом уголке! ✨ . . Планировка ресторана "Черный.Белвй. Золотой "— это объединяющее два этажа, двусветное пространство, рояль и великолепная люстра в центре, чтобы каждый момент был по-настоящему особенным. . . ? На первом этаже вас ждет непринужденная атмосфера с уютными столиками для пар и больших компаний, а также зона для шведского стола для гостей отеля. Открытая планировка и большие окна наполняют пространство светом и жизнью! . . На втором этаже - уединенное пространство для романтических ужинов и деловых встреч. Удобные диваны и стильные столики обеспечивают комфорт, а панорамные окна добавляют ощущение простора. Это пространство может быть изменено под задачи: фуршет, кофе- брейк, или уединенное пространство для пар. . . ? Высокие потолки и большие окна создают легкость и свободу. Это идеальное место для мероприятий, где важна не только еда, но и атмосферу. . В центре нашего ресторана — рояль, который наполняет пространство живой музыкой. . . ? Великолепная люстра — центральный элемент нашего дизайна ресторана, который привлекает внимание и создает атмосферу уюта и элегантности.
5 фотографий






