Перепланировка в старом фонде
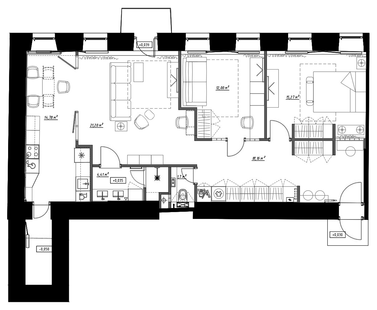
У клиента было пожелание объединить кухню и гостиную, расширить СУ, Убрать чувство катакомб из-за узкого коридора. Создать три отдельные комнаты. . . Чтобы осветить коридор естественным светом и таким образом создать чувство дома и пространства, а не просто входной зоны в квартиру, мы предложили локально использовать стеклоблоки в перегородках напротив входа в квартиру, которые можно занавесить со стороны жилых комнат при необходимости. . . Сложность объединения кухни и гостиной заключалась в том, что на кухне проведен газ. Но мы решили эту проблему предложив лофт перегородку из металла и стекла с распашными дверьми по 900 мм. Таким образом визуально мы выйграли, а двери в открытом состоянии позволяют расположить обеденную зону таким образом, чтобы было удобно к ней подойти. . . Все решения принятые в рамках проекта подлежат законному согласованию. .
7 фотографий







