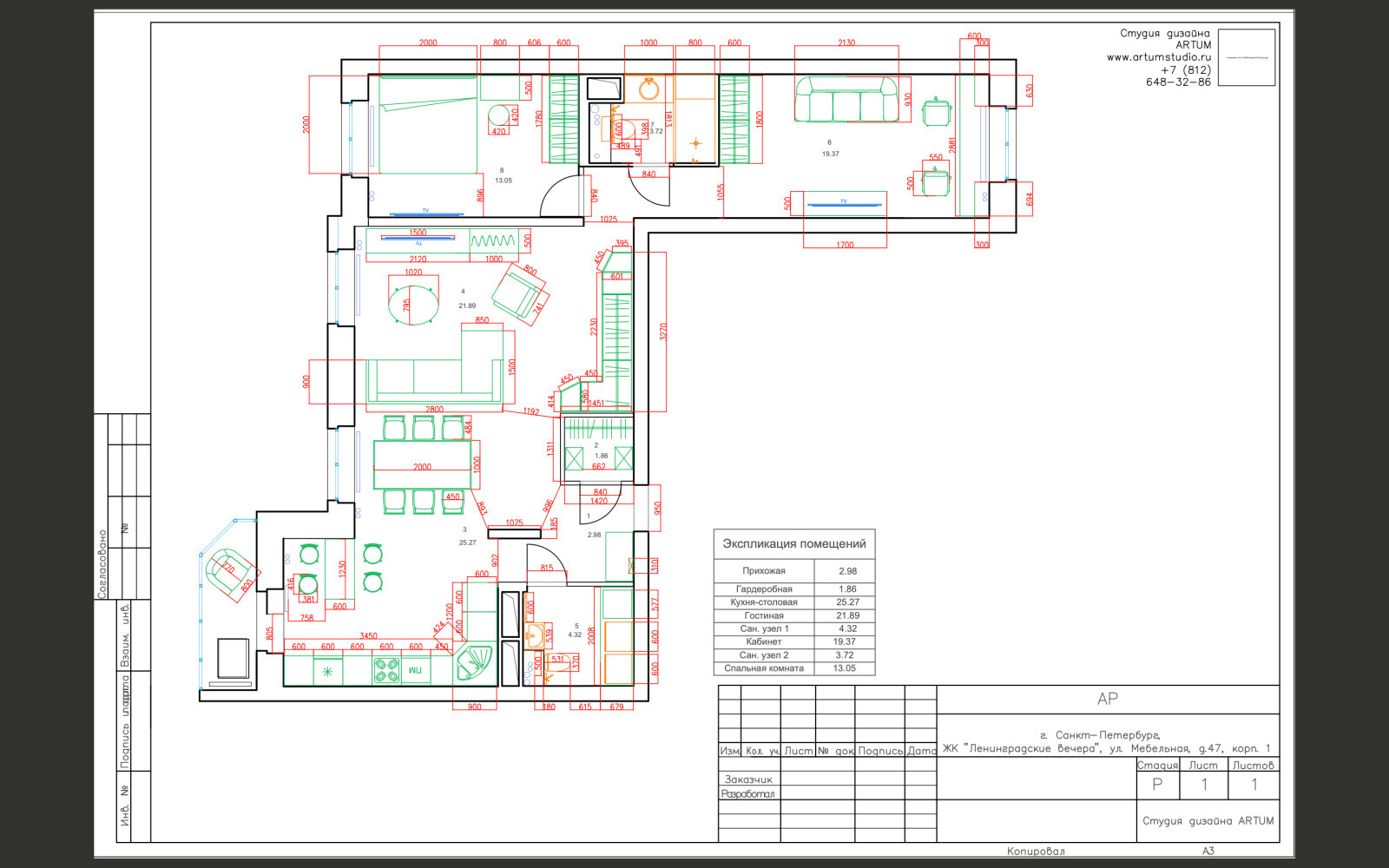
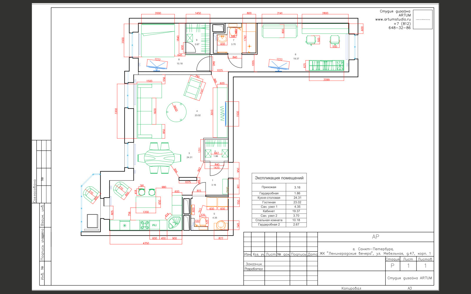
Перепланировка квартиры 100 кв м

Год реализации: 2019
г. Санкт-Петербург
photo

3 фотографии

Перепланировка квартиры 100 кв м
Перепланировка квартиры 100 кв м
Перепланировка квартиры 100 кв м
Перепланировка квартиры 100 кв м
Перепланировка квартиры 100 кв м
Перепланировка квартиры 100 кв м