Перепланировка 2-комнатной хрущевки
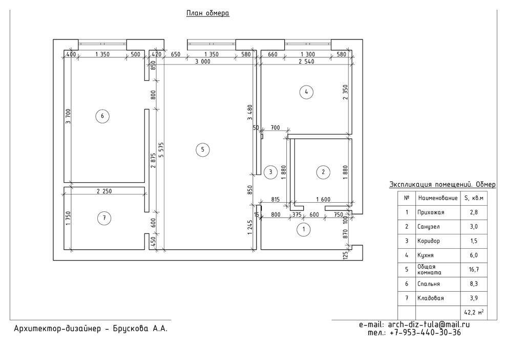
Квартира для семейной пары. . Задачей перепланировки было улучшить организацию помещений зоны общего пользования. . В результате небольших демонтажных/монтажных работ удалось увеличить санузел, более рационально использовать площадь кухни за счет переноса обеденного стола в гостиную. При этом небольшой обеденный стол для двоих в повседневной жизни легко трансформируется в большой на случай семейных праздников. Так же предусмотрено гостевое спальное место в гостиной с помощью раскладного дивана. . Заказчики приступили к реализации проектных решений.
Год реализации: 2018
г. Тула
3 фотографии



