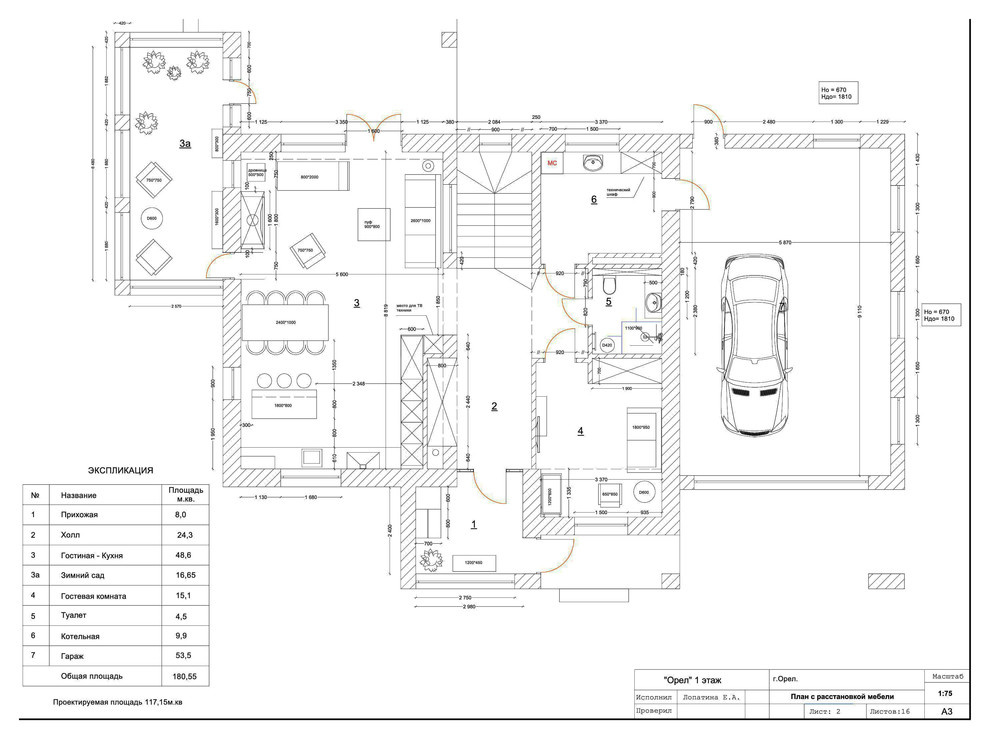
200 кв.м. проектируемого пространств 2-х этажного дома . Создаем светлое , удобное пространство . Проект находится в стадии реализации . . Исполнен в коллажах и чертежах. .
Год реализации: 2017
г. Орел
11 фотографий
200 кв.м. проектируемого пространств 2-х этажного дома . Создаем светлое , удобное пространство . Проект находится в стадии реализации . . Исполнен в коллажах и чертежах. .
11 фотографий
