Онлайн Консультация по планировочному решению
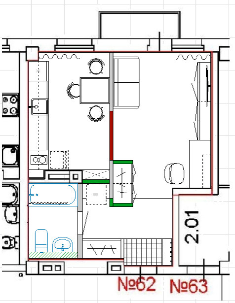
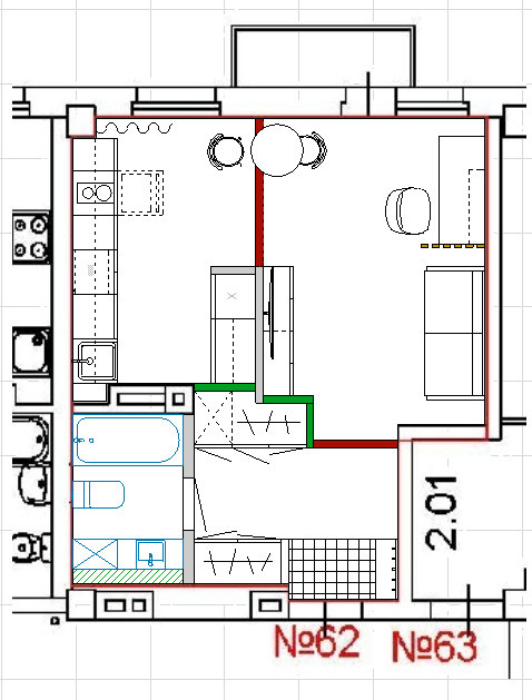
За консультацией обратился молодой человек - он приобрел квартиру в старом фонде и хотел преобразовать пространство под свои нужды. Отдельная спальня ему не нужна, требовалась просторная кухня и минимально оборудованная гостиная. По возможности организовать побольше мест для хранения вещей.
Год реализации: 2022
6 фотографий






