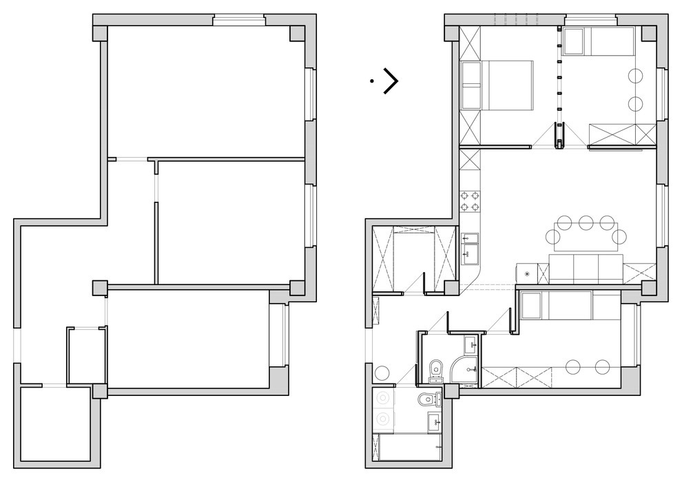
Профиль пользователяОнлайн консультации для подписчиков HouzzГод реализации: 20176 фотографийПоделитьсяСохранитьОнлайн консультации для подписчиков HouzzПоделитьсяСохранитьОнлайн консультации для подписчиков HouzzПоделитьсяСохранитьОнлайн консультации для подписчиков HouzzПоделитьсяСохранитьОнлайн консультации для подписчиков HouzzПоделитьсяСохранитьТрехкомнатная квартира для большой семьиПоделитьсяСохранитьДоТрехкомнатная квартира для большой семьиПоделитьсяСохранить