ОЛИКИ
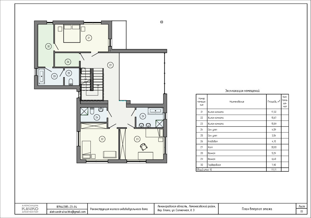
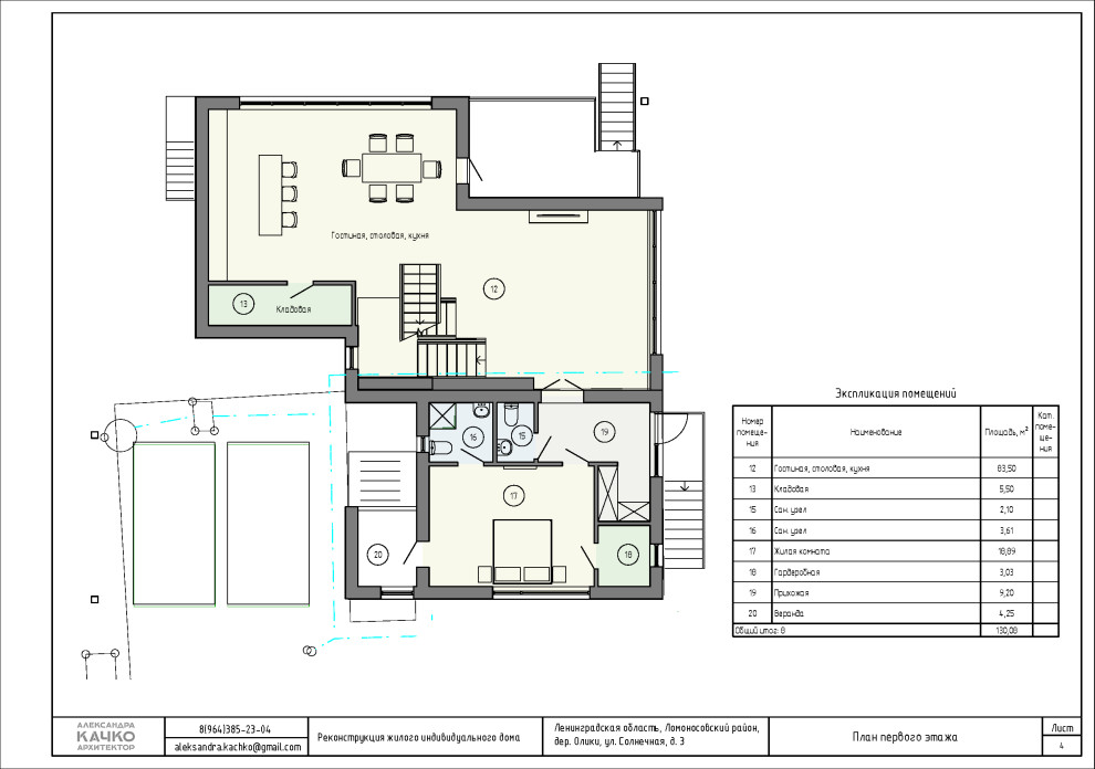
Проект реконструкции существующего здания, с редизайном фасадов. . Заказчик обратился с задачей расширения существующего двухэтажного загородного жилого дома. На первом этаже размещена обширная гостиная - столовая с кухней, а также гостевая спальня со своим сан.узлом и гардеробной . На втором этаже основная спальня, с ванной и гардеробной и две дополнительных спальни. . На крыше организована терраса . В подвальном этаже есть спортзал и хозяйственные помещения . Площадь помещений: 240 кв.м . Площадь помещений подвального этажа - 122 кв.м . . Фасады решены в современном стиле.
Год реализации: 2020
Стоимость проектирования: 34 999 ₽
9 фотографий










