logo

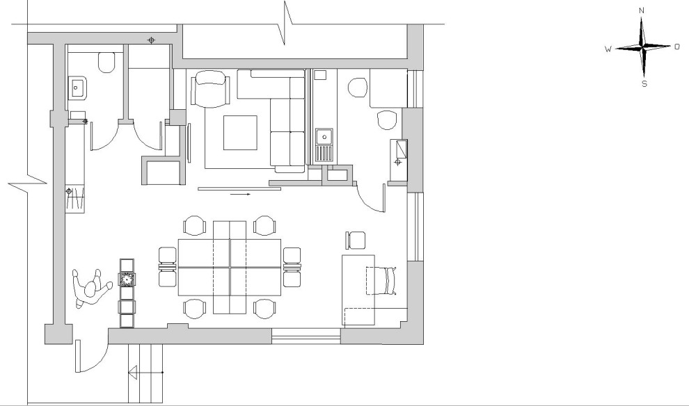
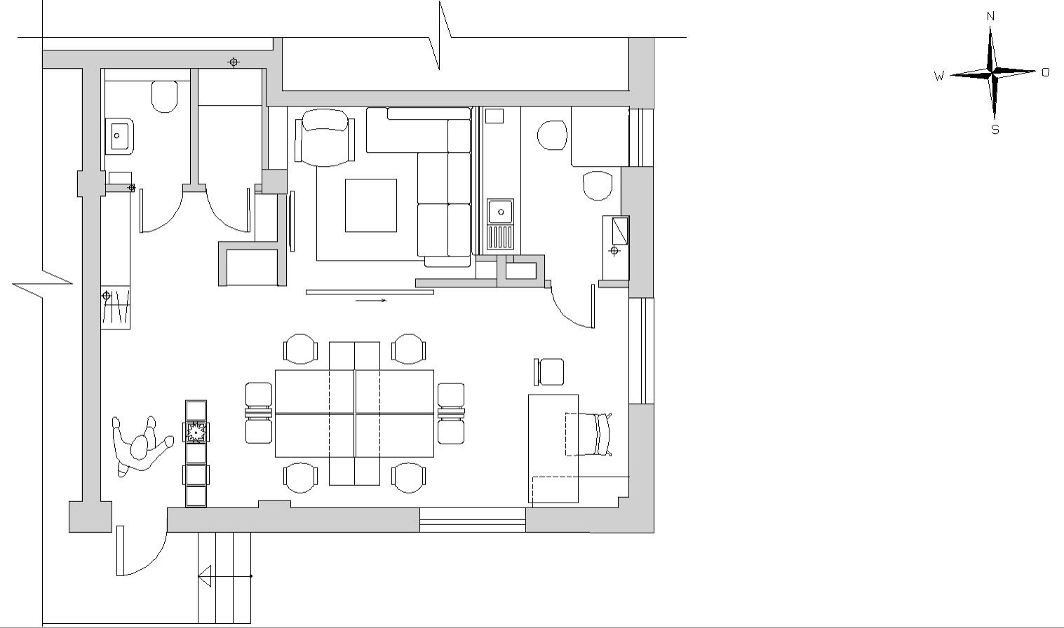
Офис на Бассейной

Год реализации: 2021
г. Калининград, 13 улица Бассейная
photo

9 фотографий

Офис на Бассейной
Офис на Бассейной
Офис на Бассейной
Офис на Бассейной
Офис на Бассейной
Офис на Бассейной
Офис на Бассейной
Офис на Бассейной
Офис на Бассейной
Офис на Бассейной
Офис на Бассейной
Офис на Бассейной
Офис на Бассейной
Офис на Бассейной
Офис на Бассейной
Офис на Бассейной
Офис на Бассейной
Офис на Бассейной
Фоновое изображение профиля Евгений Альтерман
Фото профиля Евгений Альтерман

Евгений Альтерман

Дизайнеры интерьера