Однушка на Смоленcкой
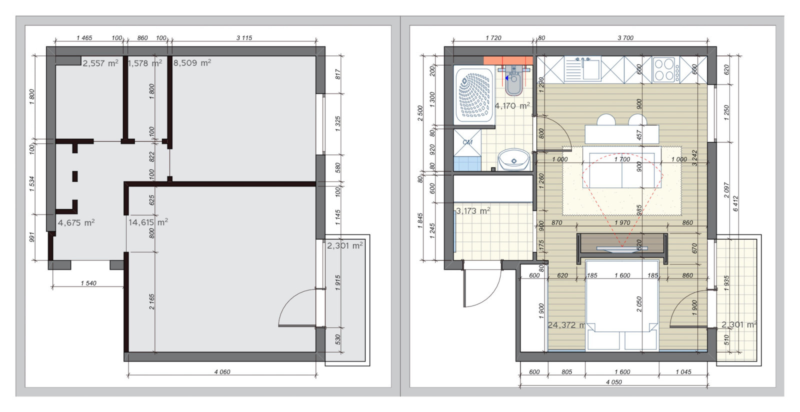
Пожеланием заказчицы было подготовить 29-метровую квартиру для сдачи в аренду с возможностью использовать впоследствии одним из сыновей. . Было предложено создать студию с обособленной миниатюрной спальней с системой хранения. Прихожая при этом получила большой встроенный шкаф и комфортный объем для смены верхней одежды. . Прямую кухню икея с глянцевыми горчичными подвесными шкафами, снабженную всей необходимой техникой, отделили от зоны гостиной компактным бурным столом. . Тв-зона расположена в глубокой нише, чтобы звук не мешал спящему в спальне, и распространялся в сторону двухместного дивана. . В санузле было решено отказаться от ванны в пользу просторного душевого уголка, тем самым выиграв обособленное место для стиральной машины и системы хранения и сушки. . Бюджет был крайне ограничен, поэтому большую часть мебели, сантехники и текстиля приобрели в Икея. . Отдельно стоит отметить высокие дверные порталы и дверь, что создало ощущение большого и легкого пространства. Гипсовая лепнина выполнена на заказ по эскизам дизайнеров, кровать и системы хранения также заказные.
10 фотографий









