Однокомнатная квартира в г. Королев
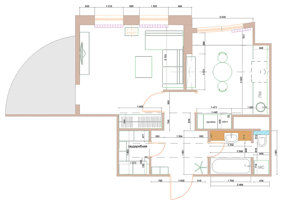
Совместная работа с nellydecorstudio. Квартира площадью 35 квадратных метров. . Заказчиком была поставлена задача отрешиться от городских реалий и создать в квартире свой мир, полный солнца и запаха моря, с ощущением того, что за окнами средиземноморский сад. . Типичная для современных квартир хаотичная планировка входной группы сменилась на симметричную, что позволило уравновесить пространство и внести аристократичность в бетонную новостройку. .
Год реализации: 2017
Стоимость проектирования: 135 000 ₽
6 фотографий






