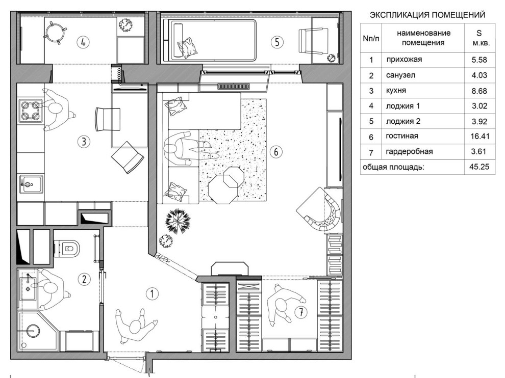
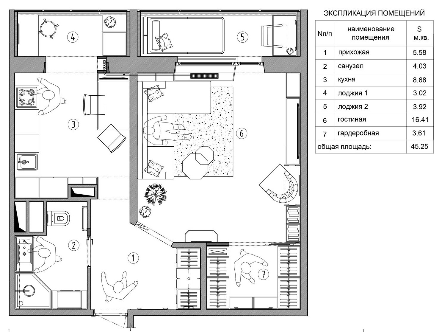
Однокомнатная квартира на востоке Москвы. 45 м.кв.
Интерьер этой однокомнатной квартиры для молодой женщины наша команда создала в кратчайшие сроки. Ровно 1 месяц ушел на проектирование и согласование дизайн-концепции с рабочими чертежами. . При проектировании данного объекта упор был сделан на неоклассику с элементами современной отделки и предметов мебели, декора. . Но были и пожелания. А именно: вписать в будущий интерьер уже приобретенные вещи. Это диван сложно-зеленого цвета, черные вытяжку и полотенцесушитель. Сохранить напольные покрытия в прихожей, кухне и гостиной. А так же никаких штор!!! . Увидеть как наши дизайнеры справились с вышеперечисленными задачами вы можете далее. Но скажем заранее: Заказчица осталась довольна и ремонт идет в полном соответствии с проектом! . Авторы: Виталий Владимиров и Евгений Ковановский.
13 фотографий














