однокомнатная квартира. 50м²
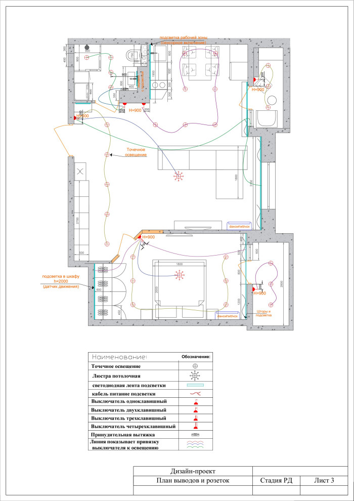
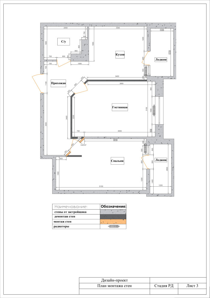
Исходя из пожеланий заказчика мы подобрали стиль и цветовую гамму. нашли аналоги и выяснили, что именно привлекло в этих интерьера молодую пару. Сделали коллажи на все помещения, для того что бы понять, как примерно должна будет выглядеть квартира. После, рассмотрев всё возможные варианты, решили делать перепланировку и сделали план расстановки мебели. так были выполнены чертежи: монтаж и демонтаж перегородок, план потолком, план полов (раскладка плитки по всей квартире), план освещения, размещения выключателей и светильников с привязками. развёртки сан узла, где так была указана раскладка плитки. после приступили к визуализации. и в довершении я со своей командой составили смету по подбору мебели, материалов, светильников и т.д, рассчитав закупочную стоимость.
11 фотографий











