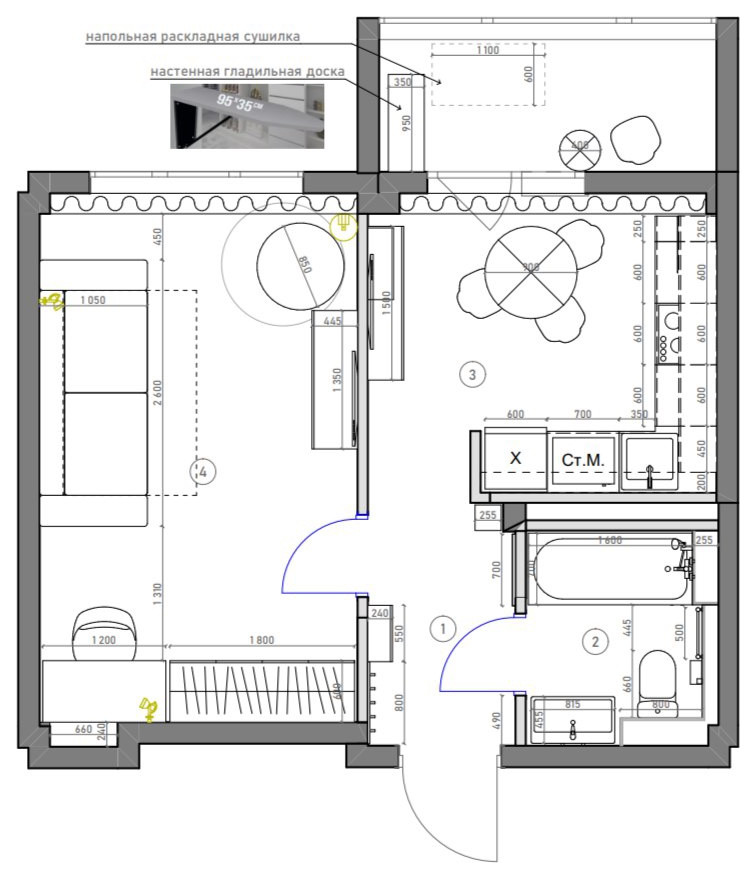
Однокомнатная квартира 36 кв.м под сдачу
Квартира территориально находится в пешей доступности от двух ВУЗов и приобреталась сразу под сдачу. Задача стояла сделать бюджетно, достаточно универсально, но при этом с яркими акцентами, чтобы привлекать внимание молодых арендаторов.
Стоимость проектирования: 34 999 ₽
г. Ростов-на-Дону
13 фотографий














