Octopus Tentacles
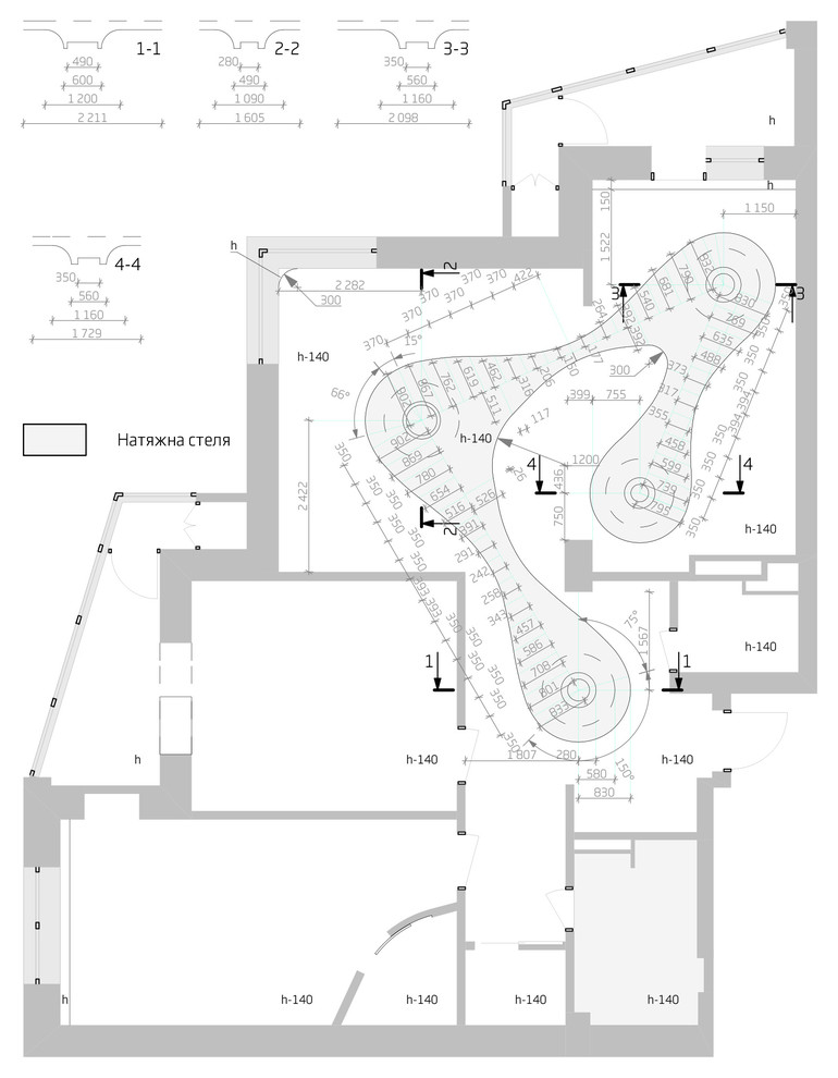
Жилой интерьер в Киеве. Акцентированные кратеры на потолке опен спейса освещают центры основных его функциональных зон. В изготовлении панели для винотеки и барной стойки из искусственного камня применен 5-осевой станок, . . НАЗВАНИЕ: Щупальца Осьминога . РАБОЧЕЕ НАЗВАНИЕ: Ирпенская2 / ИРП2 . РАСПОЛОЖЕНИЕ: ул. Ирпенская, ст. м. Академгородок, Киев, Украина . ПЛОЩАДЬ: 115 м2 . ДАТА: 2011-2013 . ПРОГРАММА: Квартира-студия с двумя спальнями . ЗАКАЗЧИК: Частный . . АРХИТЕКТУРА: Дмитрий Аранчий Architects . ПРОЕКТНАЯ КОМАНДА: Дмитрий Аранчий, Мария Аранчий . ФОТО: Алексей Федоренко | Objects360
8 фотографий









