Очаровательный коттедж в Сибири
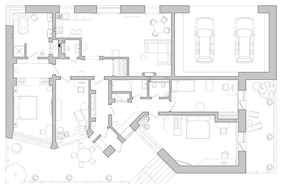
Проект индивидуального жилого дома разработан архитекторами и дизайнерами бюро DAOFORM для семьи с двумя детьми. Дом будет располагаться в живописном месте коттеджного посёлка Европейский в Новосибирске. . . Название посёлка и земельный участок, отведенный под строительство, сформировали стилистическое направление и экстерьер будущего дома. .
Год реализации: 2013
10 фотографий











