общежитие СГТУ имени Гагарина Ю.А. для иностранных студентов
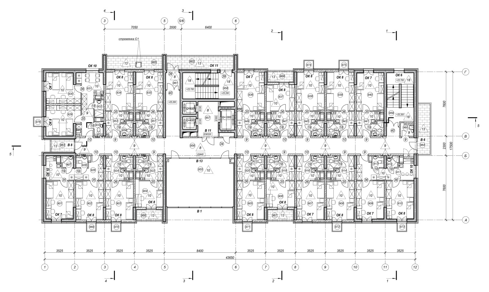
авторский коллектив . ГАП- Дядчеко Сергей Федорович . Архитекторы- Васильева Виктория Валерьевна, Селиванов Алексей Александрович, Вирич Елена Ивановна . ГИП- Негуляева Татьяна Валерьевна . . С получением статуса опорного вуза возникает потребность в новой инфраструктуре необходимой для реализации ключевой роли университета в решении задач инновационно-технического и социально-экономического развития региона. Необходим новый качественный уровень «среды обитания» для студентов и сотрудников университета – комфортное жилье, благоустроенные общественные пространства, системы спортивно-оздоровительного и социально-бытового обслуживания. Целью строительства является формирование инфраструктуры для комфортного проживания студентов СГТУ в соответствие с со-временными архитектурно-планировочными и санитарно-гигиеническими требованиями, необходимым техническим оснащением в рамках федерального проекта «Образование на экспорт». . Объемно-пространственная структура здания общежития решает задачи функционально-типологической организации и в то же время нацелена на формирование качественной архитектурной среды конкретной градостроительной ситуации. . Современное студенческое общежитие по своей типологической сути предполагает наличие не только достаточно комфортных жилых помещений, но и развитую систему общественных пространств, что хорошо прослеживается при анализе отечественного и мирового опыта строительства таких объектов. В предлагаемом проекте общественная зона формируется по горизонтали в пределах входной зоны – 1 этажа здания и развивается по вертикали в системе специализированных общественных пространств на всех надземных этажах, что позволяет обеспечить их равнодоступность для жителей разных этажей, учитывая высотную компоновку объекта.
13 фотографий













