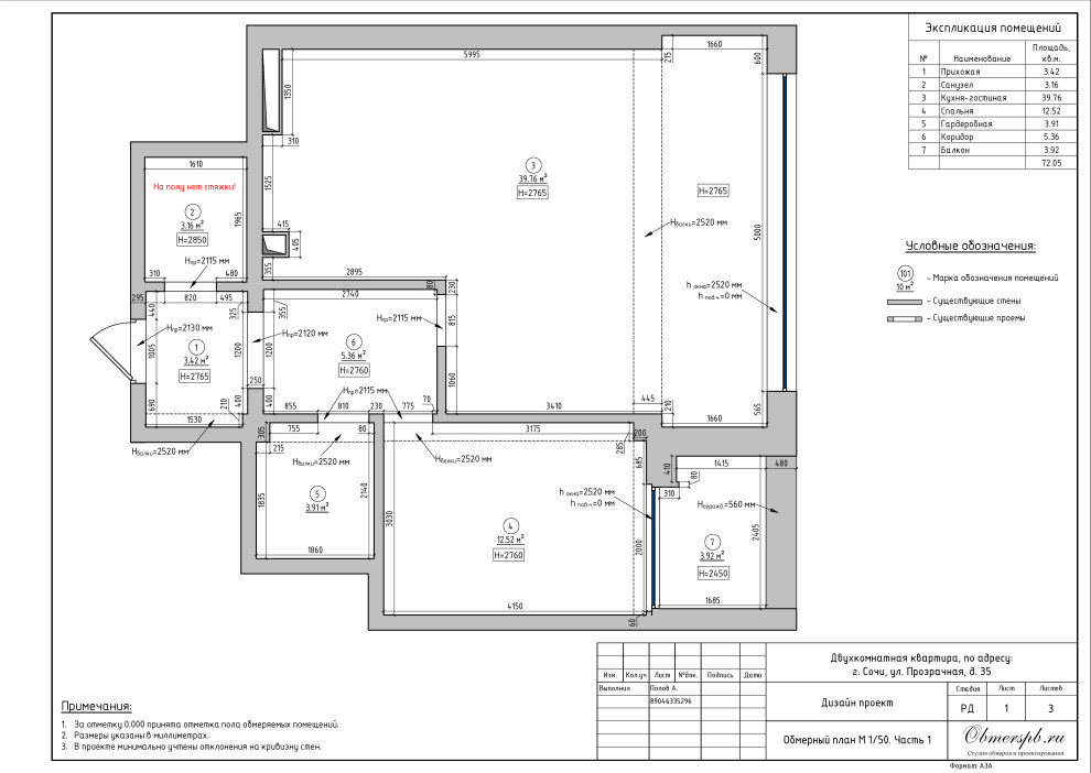
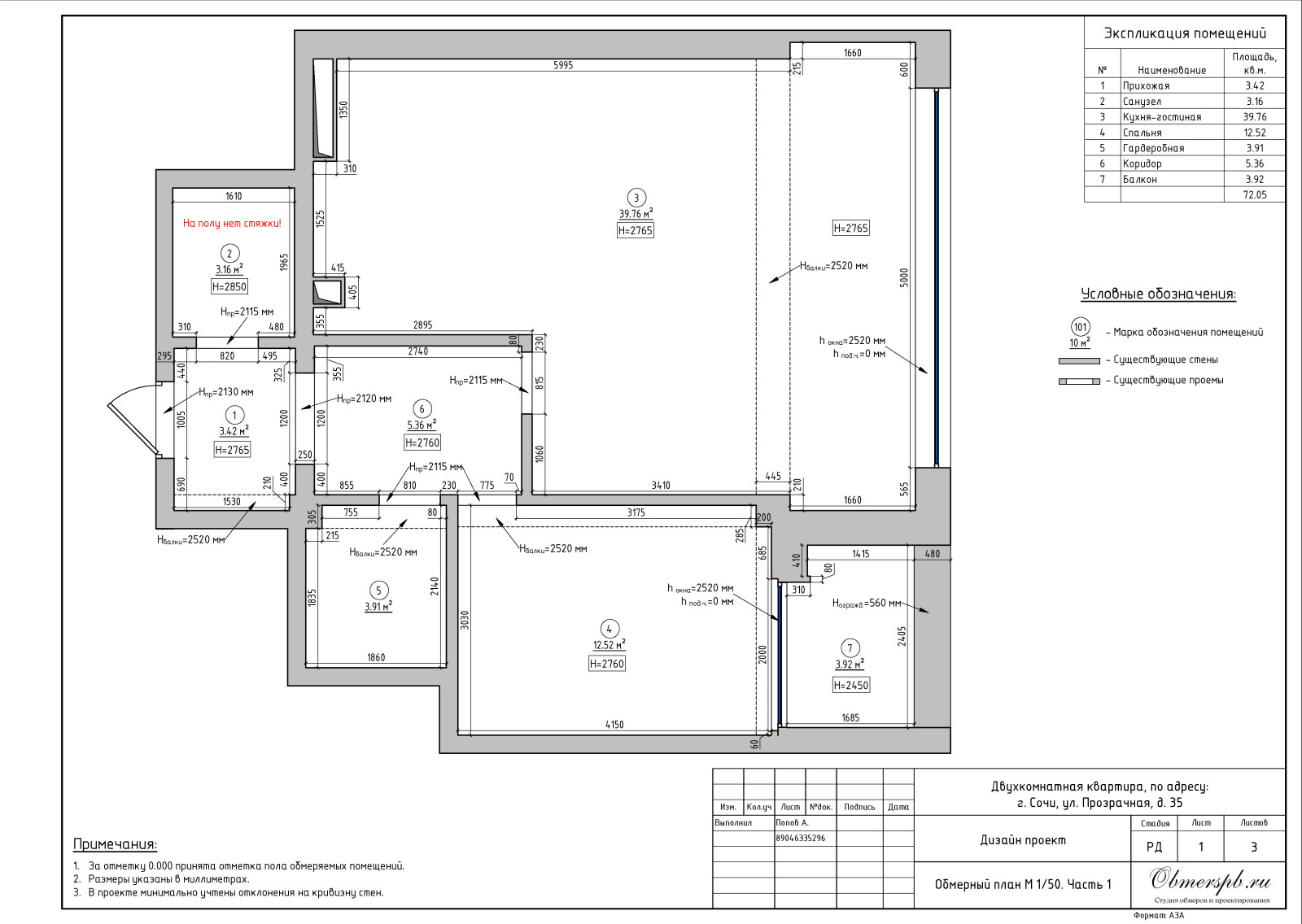
Профиль пользователяОбмер двухкомнатной квартиры в СочиГод реализации: 2023г. Сочи, 35 улица Прозрачная4 фотографииПоделитьсяСохранитьОбмер двухкомнатной квартиры в СочиПоделитьсяСохранитьОбмер двухкомнатной квартиры в СочиПоделитьсяСохранитьОбмер двухкомнатной квартиры в СочиПоделитьсяСохранитьОбмер двухкомнатной квартиры в СочиПоделитьсяСохранить