Новое Тушино
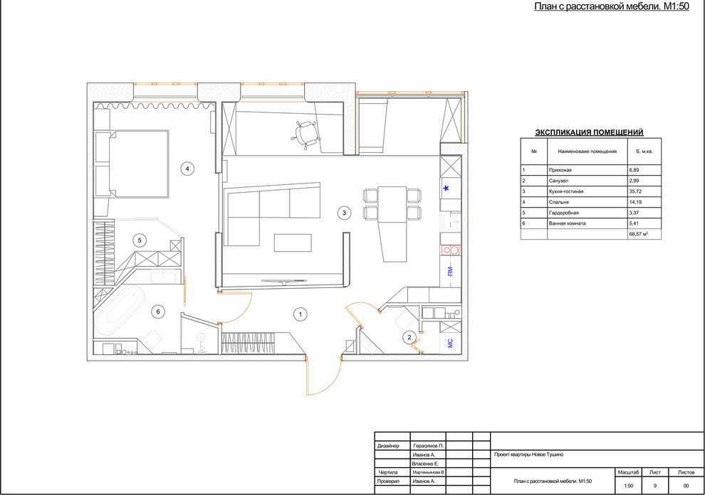
Этот проект квартиры 71 кв.м. в Московской области мы разрабатывали для молодого человека, работающего в сфере современных технологий. Заказчик — трудоголик и может работать круглосуточно, не выходя из этого процесса. Увлекается японской тематикой: имеет небольшую коллекцию самурайских катан и бонсай.
Год реализации: 2018
40 фотографий








































