Неоклассика в панельном доме
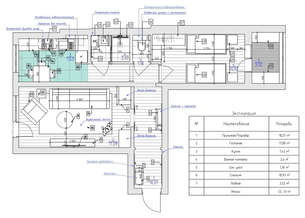
Нашей студией была спроектирована квартира-сюрприз для мамы нашей заказчицы.Работали мы в стиле сдержанной неоклассики. Квартира располагается в панельном доме, поэтому в планировочном решение мы только увеличили пространство кухни и с/у. Что получилось можете рассмотреть на представленных фотографиях.
Год реализации: 2017
Стоимость проектирования: 2 450 000 ₽
г. Саратов
38 фотографий






































