Небольшая "Южная" вилла в Крыму
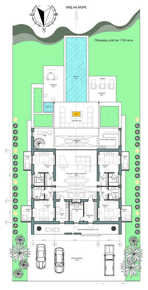
Небольшая одноэтажная минималистичная «Южная вилла» в Крыму. . Показатели проекта. . Площадь участка – 1156 кв.м. . Площадь застройки – 460,4 кв.м. . Строительный объём – 1434 куб.м. . Этажность – 1 . Кровля – эксплуатируемая . Общая площадь внутренних помещений – 203,5 кв.м. . Площадь внешних помещений – 219,3 кв.м. . Площадь чаши бассейна – 49,6 кв.м. . Спален – 4 . Санузлов – 4 . Описание. Архитектурная компоновка и дизайн-решения. . Достаточно лаконичная, но функциональная и эффектная компоновка с простым конструктивом. Узкий участок на холме с видом на море. Компоновку подсказала строгое расположение участка и дома с севера на юг. . Главный и боковые фасады достаточно минималистичные, строгие и сдержанные. Автостоянка перед главным фасадом во всю ширину участка. Вдоль главного фасада расположены длинное крыльцо входной группы и вспомогательные помещения: кухня, техпомещение и прихожая, из которой мы попадаем в большую «гостиную-студио» с большим столом, диваном, роялем, раздвижными панорамными окнами и световым фонарём. Световой фонарь оснащён перголами и матовым тонированным стеклом, призванными пропускать не палящие солнечные лучи в помещение, а мягкий рассеяный свет. В темное время суток естественный свет фонаря заменяется встроенными светодиодами. Большой встроенный камин в центре дальней от окна стены. Спальни со своими санузлами размещены вдоль боковых фасадов и оснащены высокими панорамными окнами и маленькими балконами. Спальни несколько «прикрыты» от прямых взглядов соседей рядами туй, по ряду вдоль каждого бокового фасада. Через 3-4 естественные живые туи расположена декоративная туя-светильник для ландшафтного освещения. . Гостиная «раскрывается» террасой с площадками на «морском» фасаде, выходящим к бассейну, расположенному на центральной продольной оси от дома в сторону моря. В центре главной террасы располагается большой обеденный стол, в основном для трапез в шумной компании гостей, с видом на бассейн и море. Над ним световой фонарь аналогичной конструкции, как описан выше в гостиной. В левом (восточном) крыле основной террасы винтовая лестница на эксплуатируемую кровлю, выполняющую роль патио для вечеринок. Патио оснащается тканевыми легкими навесами. У края террасы рядом с лестницей два уютных кресла с кофейным столиком, ориентированных как раз на Восток, в них можно насладиться встречей первых лучей рассвета за чашечкой кофе. В правом (западном) крыле террасы летняя кухня с баром и барной стойкой, ориентированные на запад. В конце жаркого дня здесь очень приятно собраться и выпить по бокалу прохладного вина в лучах заката. Оба этих крыла днём от солнца защищают перголы над краем террасы, а в темное время суток освещают два световых окна в боковых стенах. . За столом, далее к бассейну, на уровень ниже, расположен открытый очаг с двумя большими угловыми диванами – основное место для «тусовок» на свежем воздухе с видом на море. Эта площадка оборудована легким большим тканевым выдвижным тентом, который создаёт приятную тень солнечным днем и при необходимости защищает от дождя. У левой стойки каркаса тента разместили гидромассажную ванну и пару больших мягких тканевых пуфов. Справа от бассейна находится открытая площадка с лежаками для желающих позагорать. Слева от бассейна и далее других отнесена от дома открытая площадка для романтического уединения двоих. С этой точки открывается наиболее полная панорама на море (восход и закат). . Отделка. . Концепция отделки также достаточно проста. Внешняя «оболочка» стен облицована гладким светло-бежевым камнем с плавной горизонтальной текстурой. Внутренние фронтальные стены главного и «морского» фасадов рельефно выложены кофейно-бежевым камнем, причем заходящим на боковые стены гостиной, тем самым дополнительно объединяя интерьер и экстерьер дома. Крыльцо и главная терраса «по кругу» покрыты термодеревом янтарного цвета – пол, потолок и торцевые стены. Покрытие автостоянки перед домом и площадок за домом, отмостки, а также отделка колонн крыльца, плит и стен балконов – из бетона или плитки «под бетон». Чаша бассейна выложена голубой мозаикой. Перголы и каркас тентов – термодерево. Ограждение эксплуатируемой кровли и балконов – безрамное прозрачное стекло. . Конструктивные решения. . Фундамент – ЖБ ленточный. . Основание пола 1 этажа – плита ЖБ монолитная. . Стены несущие – монолитные ЖБ, кирпичные или пенобетонные блоки. . Покрытие 1 этажа – плита ЖБ монолитная. . Террасы - плита ЖБ монолитная. . Чаша бассейна - монолитная ЖБ. . Техпомещение бассейна – в подполье под террасой. . Утеплитель – пеноплекс. . Остекление и наружные двери – алюминиевые стеклопакеты с атермическим стеклом. . Инженерные решения. . Холодное водоснабжение – артезианская скважина. . Горячее водоснабжение – газовый котел. . Канализация – септик. . Отопление – газовый котел. . Вентиляция – вытяжная принудительная. . Кондиционирование – сплит система. .
10 фотографий











