Наб. реки Мойки
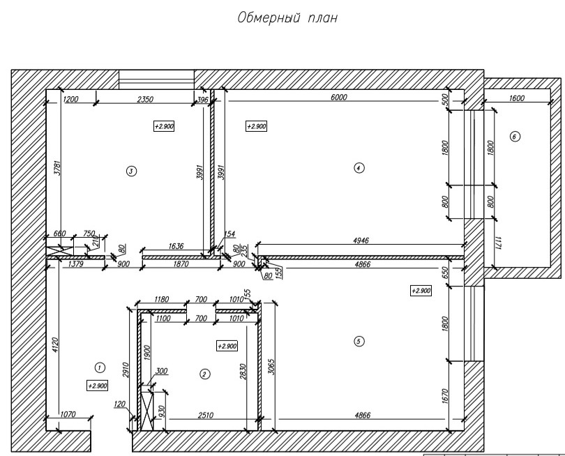
Создание дизайн-проекта для квартиры, расположенной в историческом центре города. . Задачи – создать просторный, расслабляющий интерьер, элегантный, но при этом роскошный и интересный. Дизайн должен быть актуальным вне времени. Также максимально функциональный и удобный. . Пожелания по зонированию – большая кухня-гостиная, где семья будет проводить время совместно, а также встречать гостей. Отдельная спальня и отдельная комната для ребенка. Совмещенный функциональный санузел. Балкон - как место работы и отдыха. Достаточное количество мест для хранения. . . Необходимо создать комфортный, эстетически привлекательный и функциональный интерьер, удовлетворяющий всем потребностям для проживания семьи. . . Принятые планировочные решения. Демонтаж/монтаж. . Для достижения поставленной цели были сформулированы основные задачи: . 1. выявление особенностей существующего пространства . 2. разработка планировочного решения . 3. функциональное зонирование пространства . . Выявление особенностей существующего пространства. . Красота исторического центра Санкт-Петербурга, изысканная архитектура самого дома, роскошные холлы навевают желание сохранить ощущение причастности к истории и искусству и находясь и в собственной квартире. Для оформления интерьера квартиры можно взять за основу существующие элементы в оформлении самого здания и его холлов, сохраняя общее стилевое решение и привнеся индивидуальность для жизни конкретной семьи. . . Планировочное решение. . Изучив исходную планировку, было принято решение снести имеющиеся перегородки, формирующие коридор в квартире и расширить пространство кухни-гостиной за счет переноса стен, смежных со спальней и детской. . За счет такого переноса мы расширяем пространство кухни-гостиной почти в 2 раза. Площадь спальни и детской комнаты уменьшается не критично. . . Функциональное зонирование пространства . Все помещения выполнены в светлых тонах для визуального увеличения пространства. . . Кухня-гостиная. . . В помещении кухни-гостиной имеется панорамное окно. . Пространство кухни-гостиной имеет три функциональных зоны: . 1.Зона отдыха с вместительным диваном и TV композицией. . 2.Зона столовой, в которой расположен обеденный стол на четыре персоны. . 3.Зона кухни. . Кухонный гарнитур установлен на всю длину стены, не привлекает к себе основного внимания, так как глобальное назначение данного помещения – это, в первую очередь, гостиная. При этом гарнитур гармонично сочетается с мебелью, расположенной в зоне отдыха. Функционально гарнитур спроектирован с учетом всех потребностей заказчицы: наличие встроенной бытовой техники, подсветки зоны столешницы и вытяжки. Удобные большие рабочие поверхности и зоны для хранения. . . Предполагается 4 варианта освещения помещения, в зависимости от обстоятельств или настроения владельцев. . 1. Группа точечных потолочных светильников, подсвечивающая зону отдыха - над диваном, для удобства чтения. . 2. Акцентный свет – люстра над обеденным столом. . 3. Группа точечных потолочных светильников по периметру всей комнаты, позволяющая комфортно проводить время нескольким членам семьи, а также при встрече гостей. . 4. Подсветка рабочей зоны столешницы . . Стилевое решение . Красота исторического центра Санкт-Петербурга, изысканная архитектура самого дома, роскошные холлы навевают желание сохранить ощущение причастности к истории и искусству находясь и в собственной квартире. Для оформления интерьера квартиры можно взять за основу существующие элементы в оформлении самого здания и его холлов, сохраняя общее стилевое решение и привнеся индивидуальность для жизни конкретной семьи. . Также, учитывая пожелания заказчиков выполнить интерьер в сдержанной цветовой гамме, но элегантный и роскошный, пришло решение выполнить интерьер в направлении стиля Ар-Деко. .
9 фотографий










