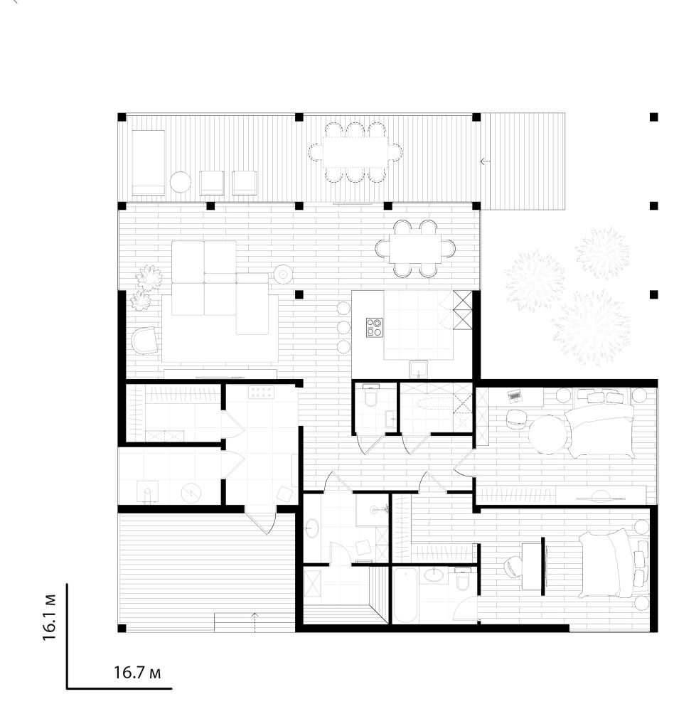
Профиль пользователяMV-220Год реализации: 20207 фотографийПоделитьсяСохранитьПланировка дома (2 спальни + сауна)ПоделитьсяСохранитьMV-220ПоделитьсяСохранитьMV-220ПоделитьсяСохранитьMV-220ПоделитьсяСохранитьMV-220ПоделитьсяСохранитьMV-220ПоделитьсяСохранитьMV-220ПоделитьсяСохранить