Монохромная квартира студия для предпринимателя
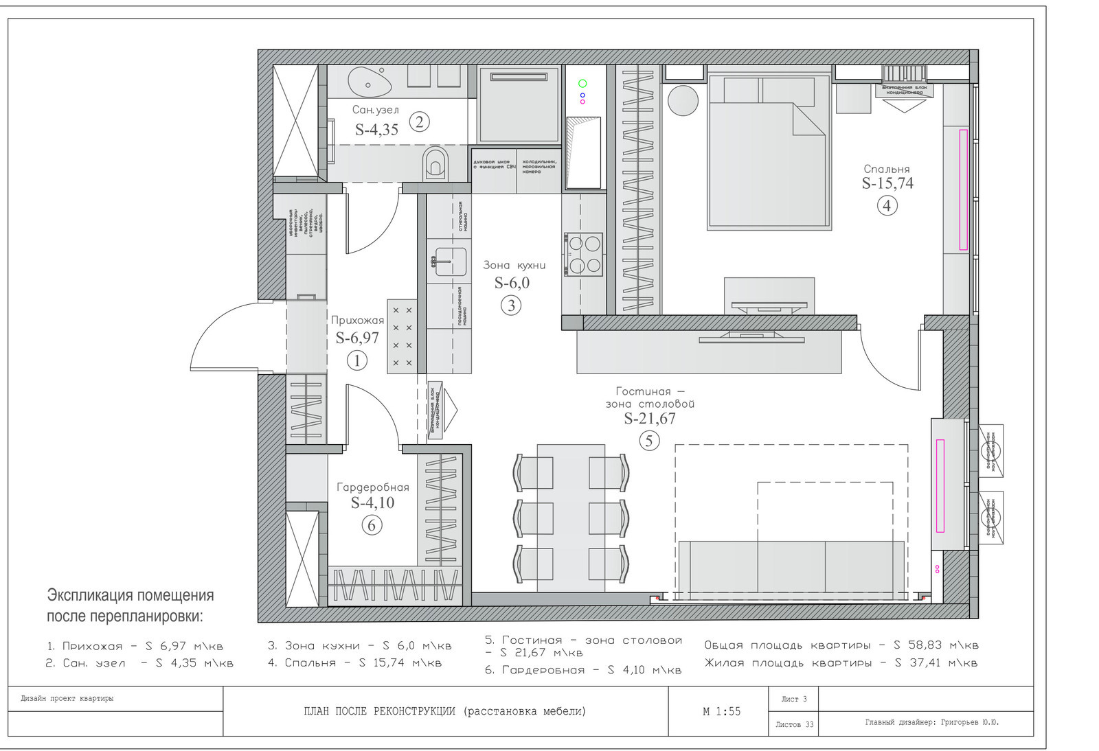
Монохромный, городской интерьер не обделенный красотой и уютом пасмурного утра. Да, именно такой ассоциативный ряд появился у меня в мыслях после первой встречи с заказчиком. На кануне мы встретились для обсуждения деталей проекта, времени было крайне мало в пределах одного часа который разделял будущую концепцию интерьера и очередную командировку заказчика. После стремительного составления тех задания к проекту, были обозначены приоритеты: квартира для молодого холостого предпринимателя живущего в постоянных разъездах между Москвой и Европой. . . Конструктивная задача заключалась в организации логичной планировки полноценной двух комнатной квартиры с созданием общей зоны гостиной, столовой, кухни а также отдельной спальни и гардеробной на площади 59 кв.м. На первый взгляд все было достаточно понятно вот только квартира у заказчика была изначально однокомнатная к тому же с несущей стеной разделяющей пространство на две равные половины. Пред началом проектирования интуитивно мной было принято решение осуществить работы по демонтажу существующих зонирующих перегородок для максимального понимания скрытых возможностей пространства, в ходе демонтажа строители обрадовали приятной новостью, случайным образом в несущей стене был обнаружен заштукатуренный и заложенный кирпичной кладкой проем не вошедший в план БТИ, проем стал основополагающим в ходе формирования нового планировочного решения которое позволило сделать нишу из проходной зоны прихожей где удачным образом расположилась емкая кухня освободившая место для просторной гостиной и столовой зоны. . . Интерьер формировался строго в монохромной гамме где серые оттенки возглавляют эту палитру сдержано сочетаясь с фактурой дерева и свежестью белого цвета украшая четкую геометрию предметов мебели и раскрываясь на стенах фактурой для которой послужило нанесение покрытия «АРТ бетон» от компании «Of decoration». Вся квартира выполнена в единой цветовой гамме с применением идентичных материалов что придает целостности проекту стирая границы между зонами таким образом придавая пространству объема и наполняя обволакивающим ощущением уюта подобно присутствию в облаке пролетающим среди серых оттенков большого города. . . За счет вытянутой прямоугольной конфигурации общей зоны и достаточно низких потолков пространство нуждалось в образовании более интересного объема и зонирования, для этих целей за диваном образовалась ниша с подсветкой обшитая практичными эко панелями под дуб, этот материал также использовался для облицовки полов, кухонного фартука, откосов шкафа в прихожей и для опускания потолка в зоне кухни переходящего фрагментально в гостиную, создание потолочного короба в кухонной зоне на контрасте позволило придать высоты низкому уровню потолка в столовой и гостиной а на кухне удачным образом скрыть коммуникации и усилить атмосферу зонирования. . . Каждый свой проект я стараюсь наполнить смыслом где текст становится прекрасным тезисным отражением фраз на прямую связанных с особенностями жизни заказчика так в этом проекте у нас появилось рукотворное зеркальное панно которое стало ключевой особенность зоны столовой. В основе панно лежит большое прямоугольное зеркало украшением которого стали буквы выполненные методом лазерной резки с нанесением фактуры разработанной совместно с художником Еленой Рогожиной где цветовая гамма идеально продолжает интерьер а фактура и мерцание серебряной патали привносит красивую детализацию притягивая взгляд. Зеркальное панно то присутствуя то растворяясь в интерьере квартиры послужило метафорой отражения рекламных слоганов большого города в разлитой водной глади после чистого проливного дождя. . . В зоне гостиной мы можем наблюдать как под окном расположилось панно сделанное совместно с художником специально для этого проекта, работа выполнена в акварельной технике с применением частиц серебряной патали, идеально растворяясь в интерьере панно удачным образом стирает с глаз присутствие батареи оставшейся от застройщика. . . Двери, мебель для кухни и сан. узла изготавливались в одной столярной мастерской что позволило облицевать фасады и дверные полотна одинаковым эко шпоном с фотопечатью которая прекрасным образом смогла передать структуру рисунка бетона позволяя изделиям максимально растворяться в интерьере выделяясь исключительно за счет конструктивных особенностей мебели созданной по эскизам дизайнера проекта. Также можно заметить что в качестве наличника на межкомнатных дверях использовался напольный плинтус который позволил придать выразительности дверному полотну и не потеряться на фоне монохромной гаммы интерьера. . . Оказавшись в спальне мы видим как изголовье кровати украшает композиция из пересекающихся диагональных линий и слова «dream∞» утвердительно написано забитыми гвоздями в стену и дополнено переплетением нитей олицетворяет что мечты не имеют границ а любая цель будет достижима. Помимо зоны изголовья в спальне приковывают взгляд фасады шкафа декорированные художественным образом, мне хотелось уйти от обыденности восприятия предмета сделав его особенным, корпус шкафа мы заказали в столярной мастерской а фасады было принято решение сделать самостоятельно, закупив высококачественный МДФ и раскроив его на детали разной шириной мы принялись декорировать фасады прямо на объекте использовав покрытие «АРТ бетон» от компании «Of decoration». Здесь грубые обрывки штукатурки созвучны фактуре бетона придают брутальности а размытые протяжные цветовые переходы связывают полотно фасада художественным образом превращая шкаф в масштабное полотно современного художника. . . Сан. узел в квартире получился компактный но при этом с ёмким душевым пространством и большим количеством мест для хранения ванных принадлежностей, над дверным проемом удалось сделать открытую антресоль куда можно складывать редко используемые вещи. Стены в сан. узле облицованы однотонной серой плиткой небольшого размера которую украшает декор переходящий с пола на стену . от напольного керамогранита другого производителя, изначально плитка и керамогранит имели разную толщину для решения этой задачи мы сделали небольшое углубления в стене за счет которого декор удалось расположить в одной плоскости с основной настенной плиткой. . . Попадая в прихожую мы можем увидеть вместительную систему хранения которая обрамляет собой проем входной двери, откосы проема мы обшили тем же самым материалом что и полы в гостиной что позволило придать выразительности входной группе и усилить эффект взаимодействия цвета с остальными зонами, приглядевшись к фасадам шкафа в прихожей можно заметить что они отличаются между собой не только шириной но и фактурой сочетая гладкую и структурную поверхность такая разноплановость придает тактильный и визуальный интерес к изделию которое из далека выглядит строго минималистично за счет графично раскроенной геометрии фасадов и монолитно белого цвета. .
20 фотографий



















