Modern house 150/185+50
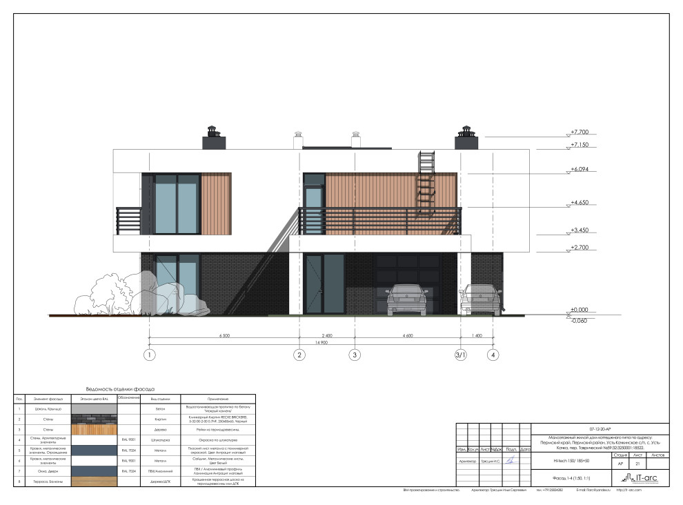
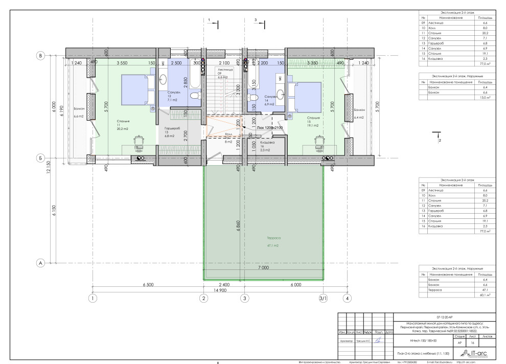
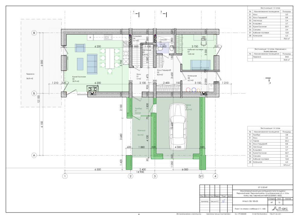
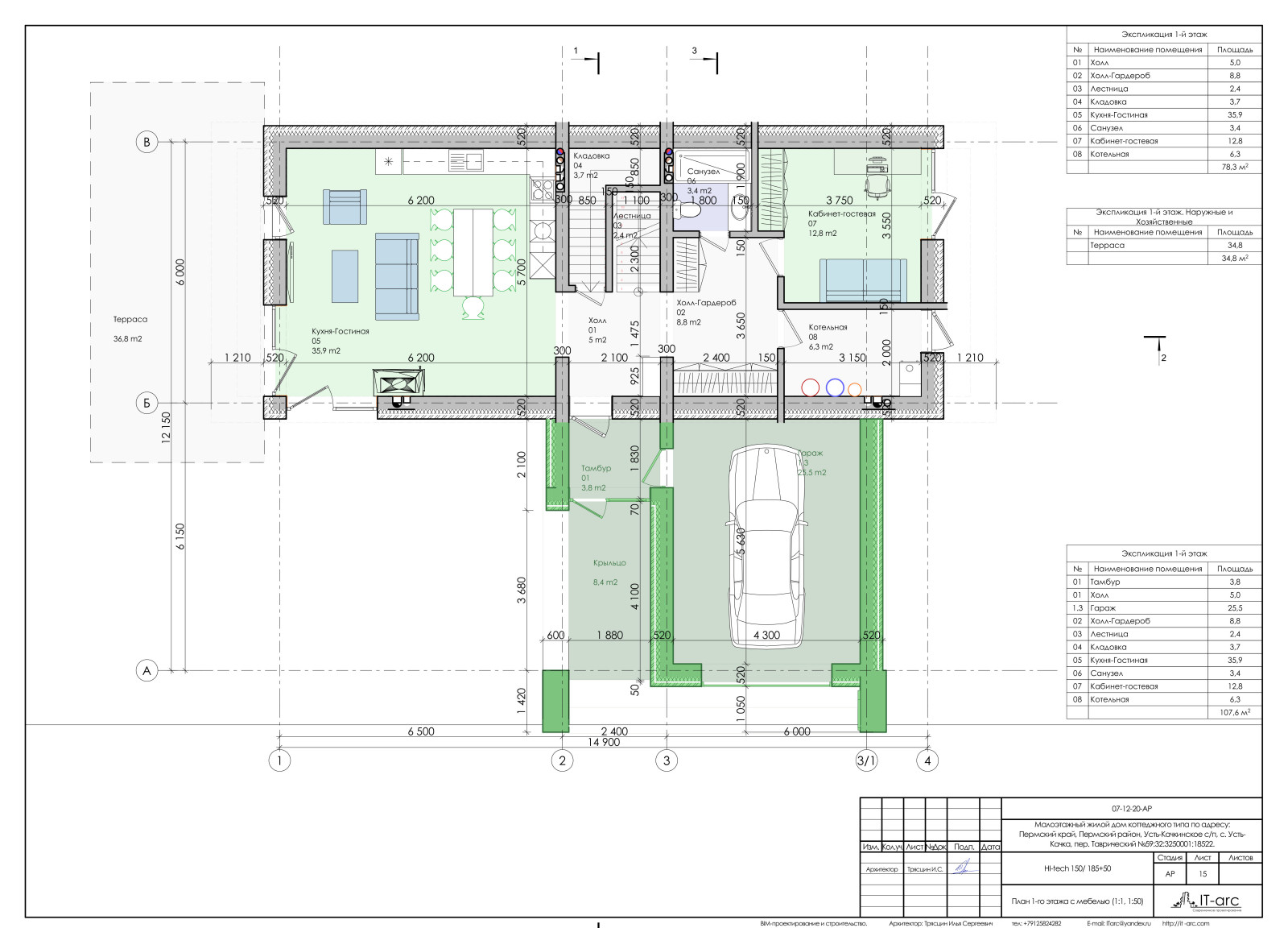
Общая жилая площадь дома - 155,3 кв. м, . Гараж - 29,1 кв. м , . Крыльцо - 8,4 кв. м, . Терраса - 47,1 кв. м . . 2 спальни + Мастер спальня . Кухня-Гостиная . . Материал: газосиликатный блок толщиной 300 мм с утеплением 100 . мм Минеральной ватой . . Отделка наружных стен - 1-й этаж: облицовочный кирпич Евро формата, реечный фасад из термодревесины, штукатурка.
Год реализации: 2021
Стоимость проектирования: 525 000 ₽
30 фотографий































