Modern Hi-tech 217+83+49
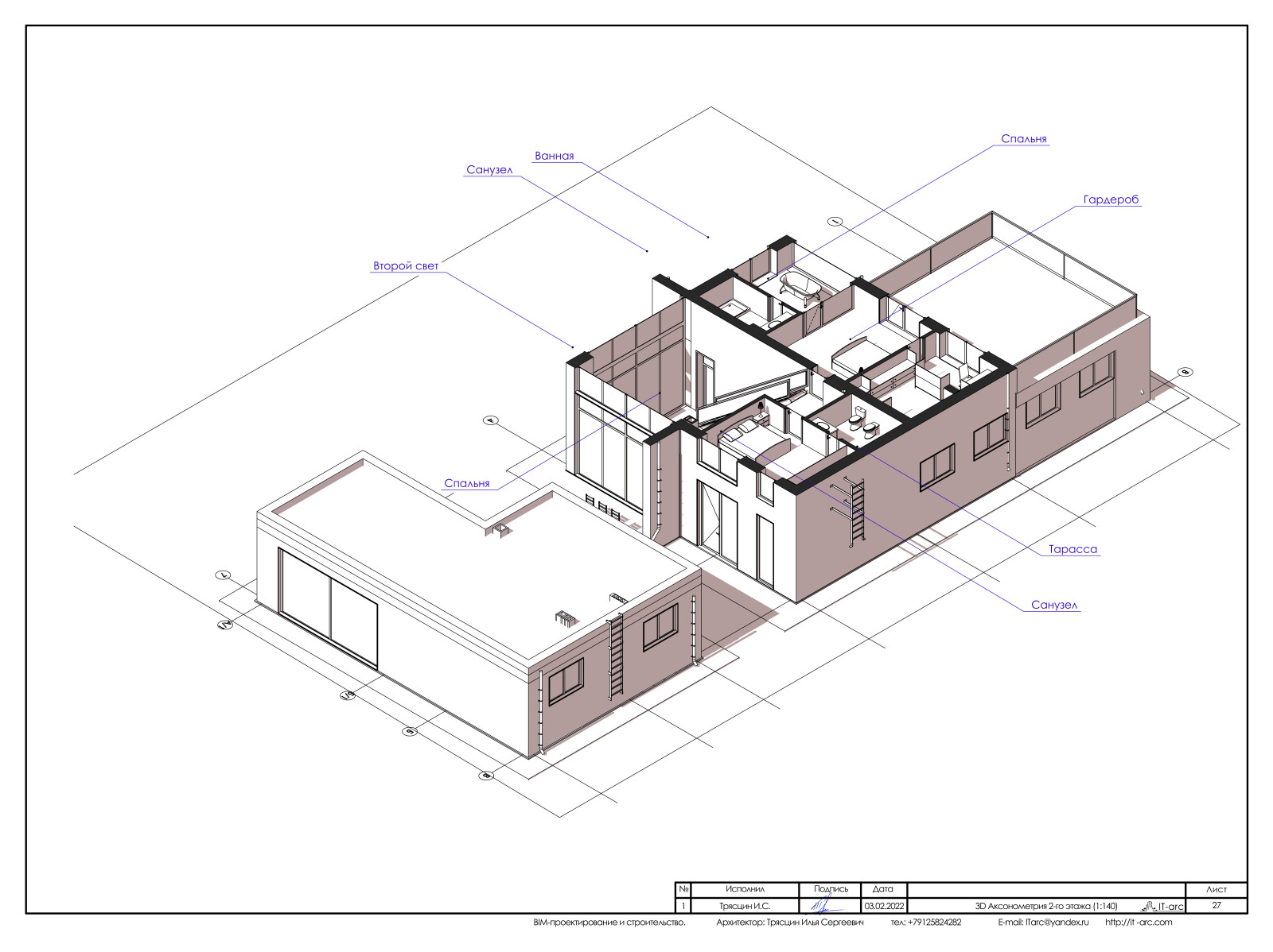
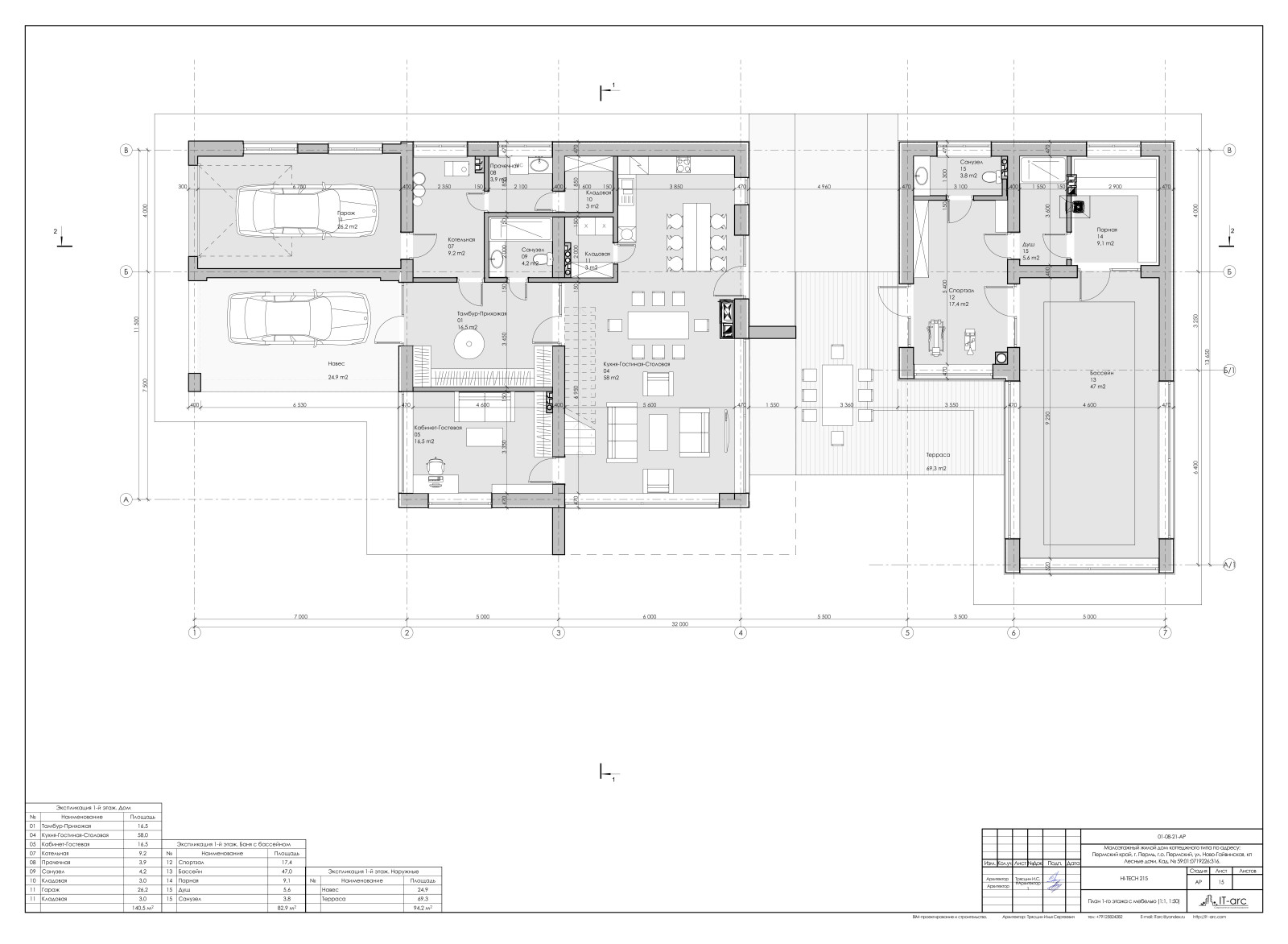
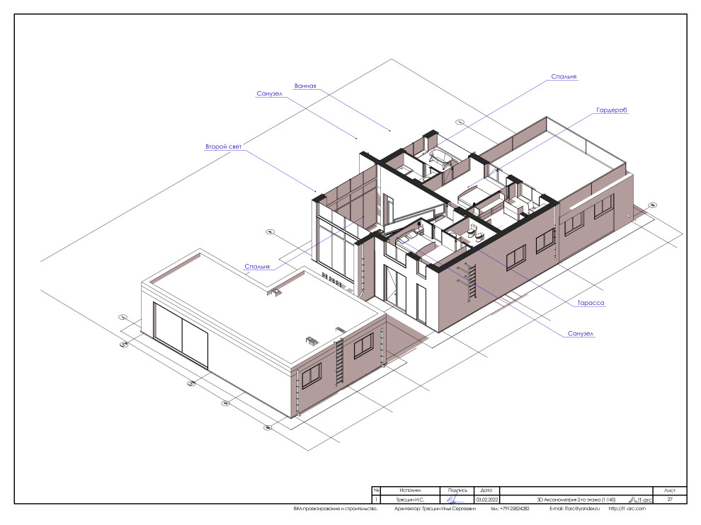
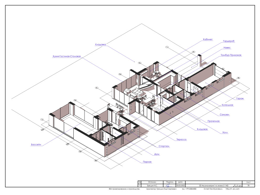
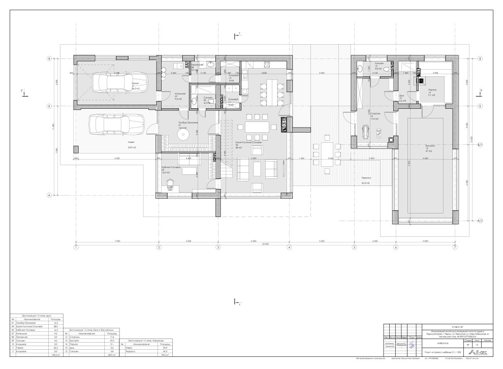
Общая площадь дома с гаражом- 217,4 кв.м . Террасы - 230 кв.м . Навес- 49,2 кв.м . Спа комплекс с бассейном- 83,5 кв.м . . Спальня . Мастер спальня . Кабинет-гостевая . 2 санузла общих . Кухня-Гостиная с кладовкой . Прачечная с бельевой . Прихожая . Холлы . Сауна с комнатой отдыха и санузлом. . Котельная . Гараж на 1м/м . Навес на 1м/м . . Спа комплекс с бассейном, Спортзалом, Душевой, Санузлом и Парной. . . Материал: ж/б монолитный каркас и газосиликатный блок толщиной 300 мм с утеплением 100 . мм Минеральной ватой . . Отделка наружных стен - 1-й этаж: Композитные панели, планкен из термодревесины.
Год реализации: 2022
Стоимость проектирования: 525 000 ₽
г. Пермь
23 фотографии
























