Модерн 666
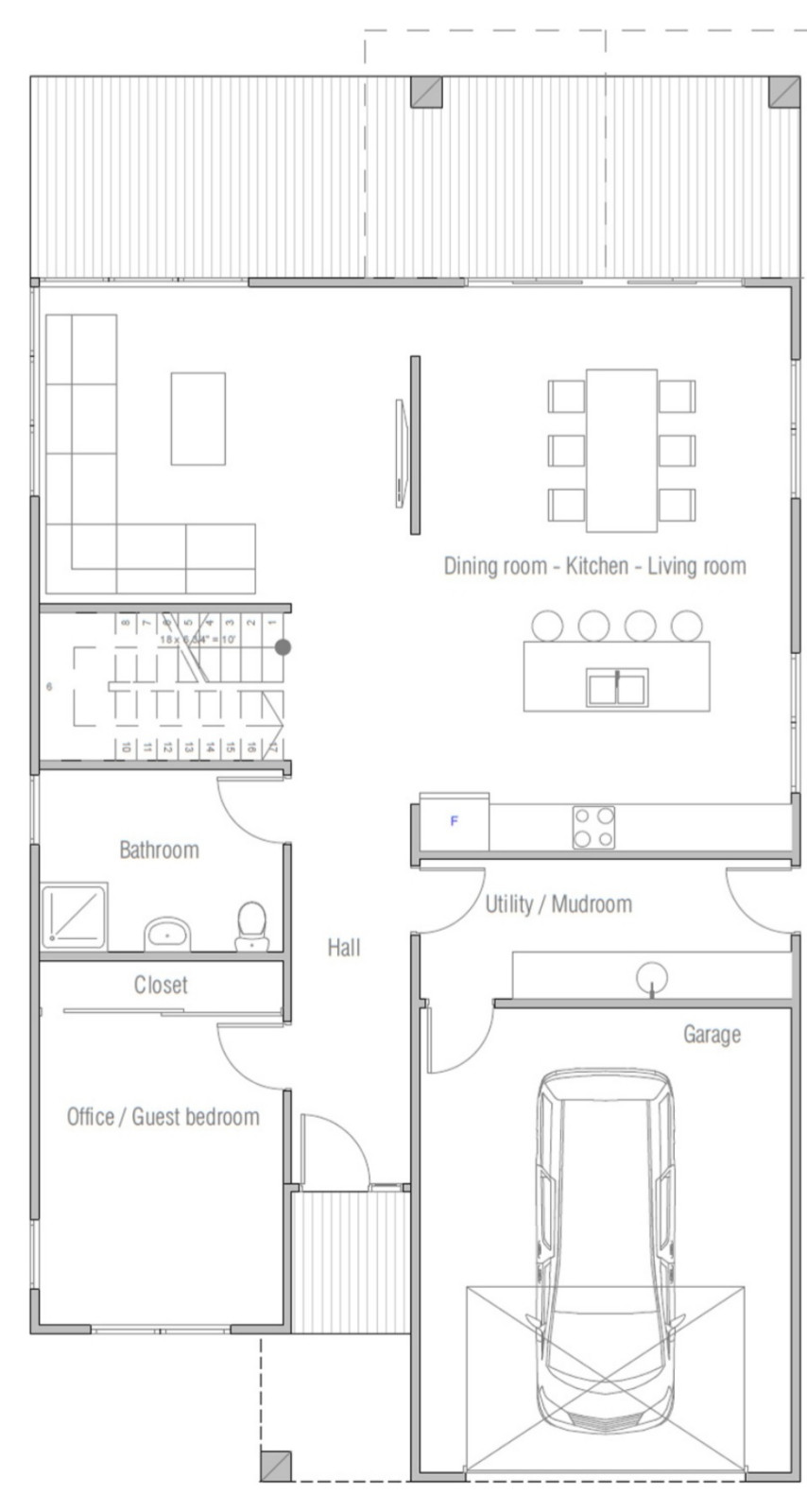
Проект Модерн 666 это решение полноценного дома для прямоугольных участков тоже. Как часто очень сложно подобрать дом когда прямоугольный участок. И чтобы дом был вместительный, имел гараж, 4 комнаты и 3 спальни, общей площадью 238 м2. В этом проекте эргономика решена по высшему разряду. А ширина 8 метров на 15 метров легко разместиться на любом участке даже прямоугольной формы.
Год реализации: 2021
Стоимость проектирования: 12 250 000 ₽
9 фотографий










