Минимализм для современной девушки
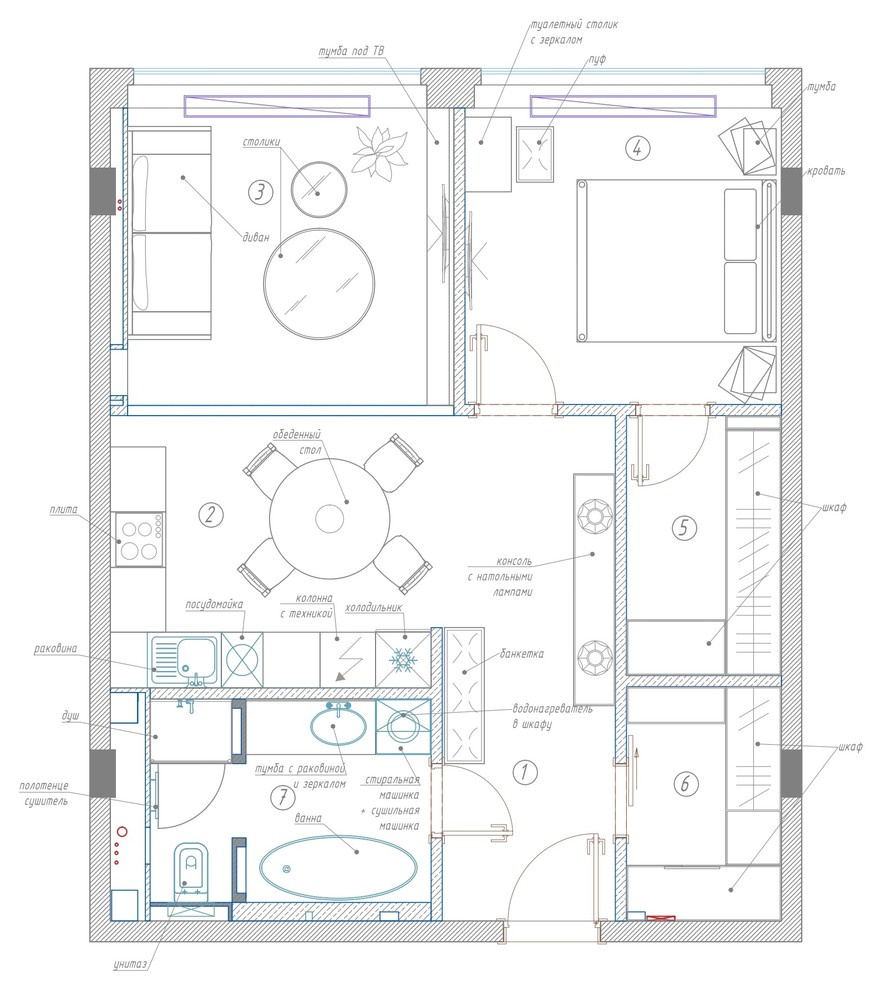
Апартаменты 60 м2, для молодой девушки. Просторная и светлая прихожая переходит в кухню. Кухня оформлена в современном стиле, фасады гладкие, нижние тумбы шпонированые, а верхние шкафы крашенные в один тон. Гостиная зона в будущем трансформируется в детскую, поэтому предусмотрена стеклянная перегородка. Спальня небольшая, но уютная. В квартире есть два гардероба, в один мы попадаем прям из спальни, второй в прихожей. Просторная ванная комната, есть отдельно стоящая ванна, душевая, зона унитаза и большая тумба с раковиной, рядом шкаф в который спрятана стиральная, сушильная машина и водонагреватель.
Год реализации: 2018
Стоимость проектирования: 5 250 000 ₽
11 фотографий










