Минимализм для молодой пары | 71,6 м²
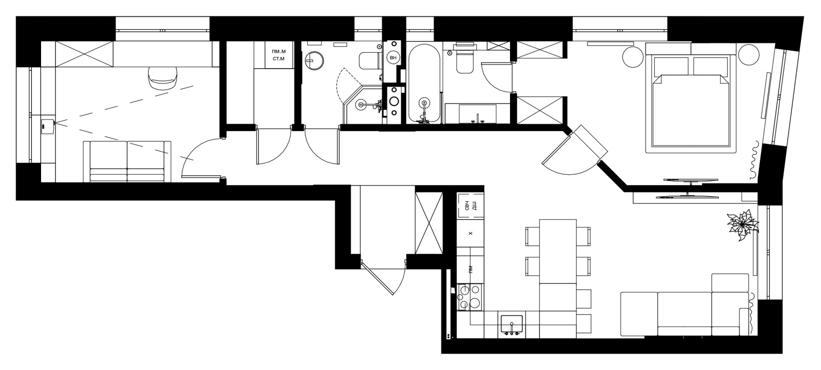
Тег проекта: #WMGP71 . Площадь: 71,6 м² . Лоĸация: г. Москва | ЖК «Green Park» . Год: 2022 . . Современный стиль впитывает в себя разные решения, цвета и фактуры. С первого взгляда он может показаться простым, но в этом и есть его магия, когда за простыми и понятными формами скрывается продуманный, функциональный и комфортный интерьер. . По нашему мнению, современный интерьер должен быть островком безопасности и умиротворения от бесконечного потока информации, которую мы обрабатываем за день, на работе или в быту. . Основной задачей квартиры было сформировать просторную кухню-гостиную с островом, небольшой кабинет и спальню с ванной комнатой. Не смотря на сложную конфигурацию квартиры, с точки зрения планировочных решений, мы удовлетворили все желания заказчиков. . Большое количество несущих перегородок сложной формы нам продиктовали функциональное зонирование входной группы, где расположилась просторная прихожая и ванная комната, совмещённая с постирочной. . . Прихожая и коридор — 9,5 м² / Ванная комната — 4,1 м² / Душевая - 3,2 м² / Гардеробная - 2,6 м² / Спальная комната - 14,5 м² / Кабинет - 12 м² / Кухня-гостиная - 24 м².
38 фотографий







































