Мини отель в горах Кавказа
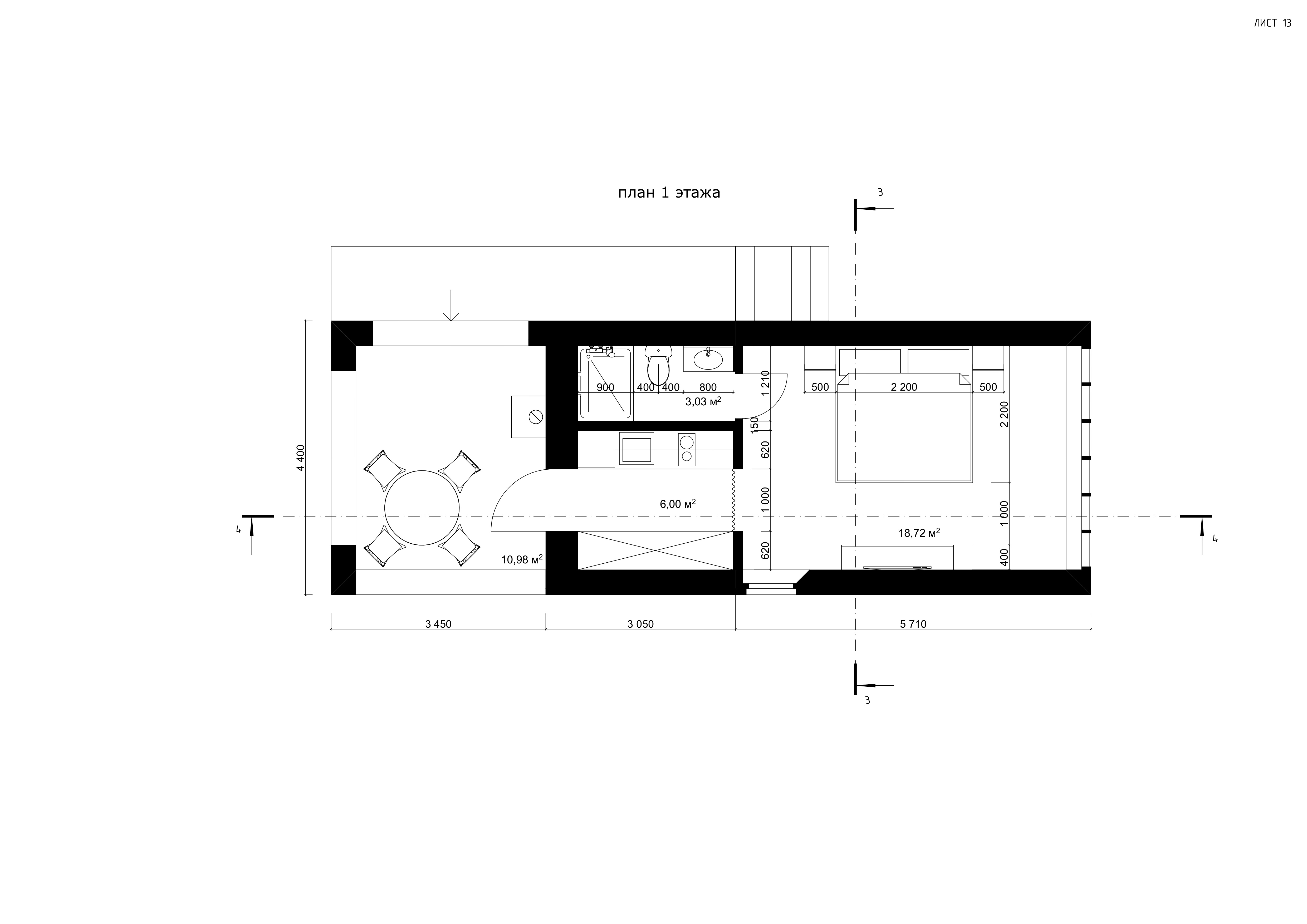
Аскетичная архитектура в горах Кавказа, д.Куркли. Первый этаж - существующее строение. Второй этаж-новое строительство под использование небольшого номера для гостей с видом на горы, их можно лицезреть из большого окна или террасы.
Год реализации: 2025
г. Буйнакск, респ Дагестан, Лакский р-н, село Куркли
19 фотографий


















