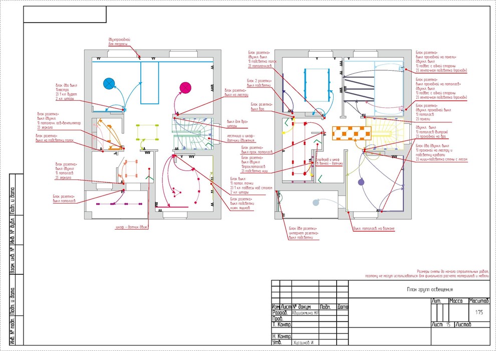
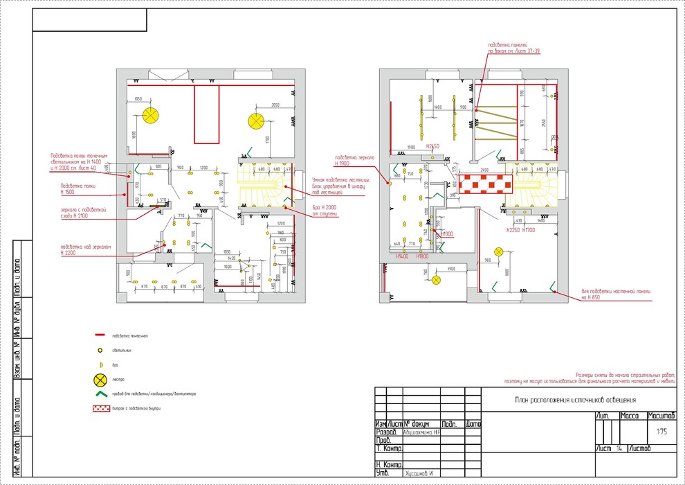
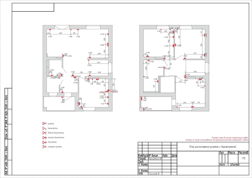
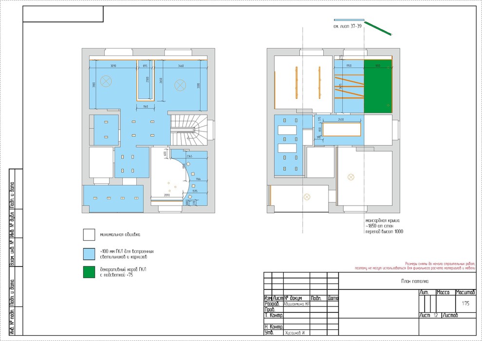
Михайловка Грин #1
Проект разработан в сентябре 2018 года и заказчики еще не приступили к ремонтным работам. Дизайн проект дома разработан для семьи из четырех человек. Дом находится в поселке Михайловка Грин, недалеко от Уфы. Большим желание заказчицы было сделать дом уютным для ежедневного проживания, но между тем, вызывающим интерес и восхищение у гостей. Так мы пришли к сочетанию современных тенденций минимализма и использованию с ноткой роскоши. . В гостиной это сочетание наиболее очевидно. Здесь мы видим новую коллекцию Estima Ideal (ID01 60x60 непол.) имитирующую богатую текстуру белого мрамора, которая эффектно подчеркивается необычной стеной декорированной зеркалом и резными панелями из МДФ. . На кухне мы также подчеркнули скалистую текстуру керамогранита Estima Quarzite (QZ01 60х60 непол.) фотообоями с изображением гор. . И наконец в гостевой душевой как нельзя кстати пришелся керамогранит Estima Venezia (VZ01 60х60 непол.). Холодный оттенок с имитацией штукатурки в сочетании с многоуровневым освещением делает помещение необычайно современным и визуально расширяет пространство.
50 фотографий



















































