МАРИСА 3
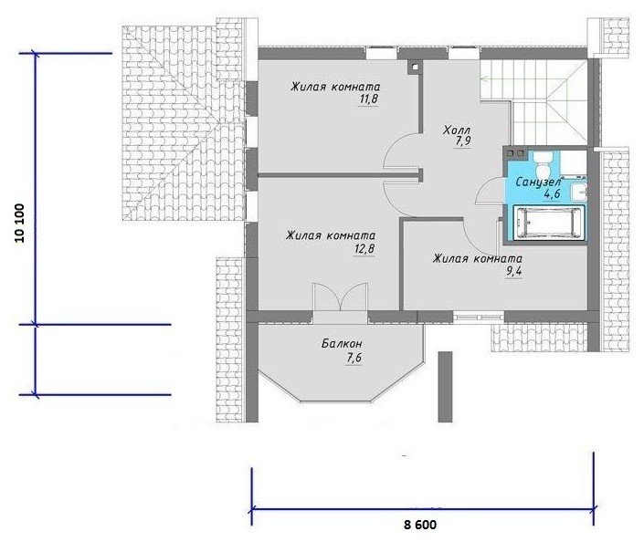
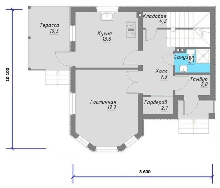
Площадь общая . 101.37 м. кв. . Размеры . 10,1 x 8,6 . Технология . Газобетон . . Кол-во комнат . 4 . Наличие гаража . нет . Срок строительства . 85 дн. . СТАНДАРТ . 1 716 000 руб. . гарантия 1 год . ОПТИМАЛ . 2 397 000 руб. . гарантия 2 года . ПОД КЛЮЧ . 3 294 000 руб. . гарантия 3 года . Рассрочка 0% . Кредит от 12.5% . Мат. капитал . МОНОЛИТНЫЙ ФУНДАМЕНТ ВКЛЮЧЕН . в стоимость любой комплектации . * - при начичии фундамента предоставляется скидка . . . ЦЕНЫ И КОМПЛЕКТАЦИИ . Цена (руб.) . Количество дней . КОМЛЕКТАЦИЯ . 1 716 000 руб. . Срок: 90 дней . СТАНДАРТ . 2 397 000 руб. . Срок: 120 дней . ОПТИМАЛ . 3 294 000 руб. . Срок: 150 дней . ПОД КЛЮЧ . . Комплектация "Под ключ": . Фундамент Монолитный железобетонный ленточный. Опционально :Монолитная плита ; Утепленная шведская плита. Бетон м350;Арматура А3 D12 Подготовительные и земляные работы, геотекстиль, песчано-щебеночная подушка, закладные под коммуникации, опалубка, гидроизоляция, вязка арматурного каркаса . Наружные и несущие стены Наружные стены Газобетон(H+H, КЖБИ,Aeroc, СтройКомплект, ЕвроАэроБетон) 300мм D500, несущие внутренние 300мм, отсечная гидроизоляция Технониколь , армирование арматурой d8 (каждый 3-й ряд)Основание под газобетон - полнотелый кирпич М-150 Опционально: блоки 350/375/400 . Перегородки Газобетон(H+H, КЖБИ,Aeroc, СтройКомплект, ЕвроАэроБетон) 100мм D500 . Перекрытия Деревянные балки 100х200 из обрезного антисептированного пиломатериала; монтаж утеплителя Isover|Knauf; монтаж пароизоляционной пленки Изоспан; Опционально: монолитное железобетонное перекрытие: Бетон м350;Арматура А3 D12 . Армопояс, перемычки ж/б армопояс, ж/б оконные и дверные перемычки с использованием арматуры d10, d12 ,Бетион м300 . Кровля Отсечная гидроизоляция, мауэрлат брус 150х150мм, стропильная система доска 50х200мм, контробрешетка 50х50мм, обрешетка 25х150мм, металлочерепица Монтерей/Каскад(цвет на выбор), доборные элементы, (обработка всех деревянных частей огне-биозащитой) проход через кровлю дымоходной трубы(утепление, герметизация) монтаж утеплителя Isover|Knauf; монтаж пароизоляционной пленки Изоспан; Опционально: Кровельный материал на выбор-Мягкая черепица;Керамическая черепица;Сланцевая черепица;Композитная черепица;Натуральная черепица;Фальцевая кровля;Медная кровля;Цементно-песчаная черепица;Ондулин Производители:Braas,Балтик Тайл,Shinglas,Katepal,Icopal,Ruuki,Roben,Luxard и пр. . ЭЛЕМЕНТЫ . Лестница Деревянная межэтажная лестница лево / правозаходная; колонна и уголки крепления ступеней к тетивам — сталь; ступени, опорные и заходные столбы, тетивы, поручни и балясины, облицовочные втулки — древесина (сосна) Опционально: монолитная железобетонная, металлическая, кованная . Водосточная система Монтажный комплект: желоба подвесные; желоба подвесные угловые; заглушки для желоба; трубы; колена угловые; воронки водосборные; отметы; держатели желобов; держатели труб; крепеж . Карнизы Подшивка свесов и карнизов кровля сухим строганным обрезным пиломатериалом с вентиляционным зазором. Нанесение краски Tikkurila 2 слоя Опционально: материал подшивки на выбор . Окна "Двухкамерный стеклопакет Rehau :Системная глубина/число камер: 70 мм/многокамерная . Теплоизоляция: Rопр =0,71м2°С/Вт. . Взломобезопасность: установка усиленных приборов запирания благодаря смещению оси приборного паза 13 мм. . Воздухо- и водонепроницаемость: надежная защита от сквозняков, пыли и воды ,2 контура уплотнения (нахлест уплотнений по 7/8 мм внутри), фурнитура. . Опционально: Стеклопакет:Шумоизоляционный;Энергосберегающий; Ударопрочный; Тонированный; Солнцезащитный; Дополнительная комплектация: Детские замки; Москитные сетки; Шпросы." . Входные двери "TOREX Ultimatum Цвет фурнитуры: раздельного цвета, хром/латунь Замок основной . Blockido C1, 4-го класса взломостойкости Замок дополнительный . Blockido L3 сувальдного типа, 4-го класса взломостойкости;Противосъемные ригеля, двойной контур уплотнителя, металлический эксцентрик, глазок с металлической шторкой широкого угла обзора. . Порошково-полимерное покрытие . Цвет внешней отделки:Медный антик . Тип внутренней отделки:Панель MDF с покрытием Cortorex Цвет внутренней отделки: . Опционально: Видеоглазок;Тип внешней отделки" . Отделка наружная . Фасад Штукатурка фасадная влагостойкая, паропроницаемая(цвет на выбор); утеплитель минеральный Paroc: Плотность кг/м3 140 ;Теплопроводность, Вт/м°С 0,037 Опционально:материал отделки, толщина и тип утеплителя на выбор. . Цоколь Гидроизоляция цоколя.Фасадные панели с усиленными ребрами жесткости, ветро- и удароустойчивые, стойкие к деформациям натуральной фактуры. Опционально: материал отделки цоколя на выбор. . Отделка внутренняя . Полы Чистовая: монтаж ламината. Прихожая,сан.узлы плитка Опционально: материалы чистовой отделки на выбор. . Внутренние стены Чистовая: виниловые обои под покраску Опционально: материалы чистовой отделки на выбор. . Потолок Чистовая: монтаж натяжных потолков, в том числе влагостойких Опционально: материалы чистовой отделки на выбор. . Прочее Отделка откосов и установка подоконников; установка межкомнатных дверей . Инженерия . Электрика Электрика: монтаж распределительного щитка, установка автоматов, монтаж кабеля внутренней силовой сети, монтаж кабеля внутреннего освещения, установка приборов -розеток, выключателей в соответствии с проектом. . Отопление Монтаж распределительного коллектора системы отопления. Установка конвертов.Установка котельного оборудования в соответствии с проектом. Опционально: монтаж теплого пола, монтаж 2х-контурного котла . Водоснабжение Монтаж распределительных коллекторов систем ГВС и ХВС;Разводка систем ГВС и ХВС в помещениях с использованием ПВХ труб в соответствии с проектом. Опционально: установка насосного оборудования, автоматики,систем фильтрации. Бурение скважин. . Канализация Прокладка канализационных труб по дому. Опционально: монтаж автономной канализации . Бесплатные опции . Проект стадии АР Да . Поэтапная оплата Да . Определение места посадки дома на земельном участке с учетом норм и правил Да . Эскизы ландшафтного дизайна участка с генпланом застройки Да . Геологическое обследование грунтов Да . Внесение изменений в типовой проект дома Да . Экспресс-дизайн интерьеров дома Да . Эскизные проекты внутренних инженерных сетей Да . Уборка территории да . Дополнительные опции . Кредит Да . Ипотека Да . Страхование Да .
9 фотографий










