MANHATTAN LUXURY. Дизайн-проект квартиры 180 м2
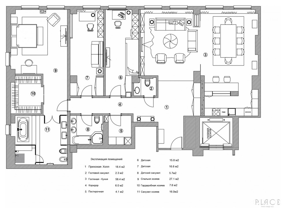
Проект квартиры площадью 200 кВ.м. В отделке квартиры используются качественные дорогие материалы : дерево, латунь, мрамор , нубук, в текстиле преобладают мягкие велюровые ткани . Приватная и общая зоны разграничены, т.о. в правой части квартиры расположены гостиная зона, с кухней и столовой и гостевой санузел. В левой же части располагаются спальни и хозяйские ванные комнаты. Гостиная зона объединена со столовой, предполагающей комфортное размещение 8 человек. В отделке кухни используются листы латуни, при необходимости непосредственное место для приготовления пищи может быть закрыто от посторонних глаз предусмотренными створками . В мастер-ванной на подиуме возле окна располагается ванна и душевая кабина. Продолжение одной из ступеней подиума является сидением в зоне душа. В целом, дизайн квартиры решён преимущественно в светлых оттенках с применением тёмных контрастных деталей, придающих помещению некоторую динамику и драматизм. . .
22 фотографии






















