Малый Николопесковский переулок
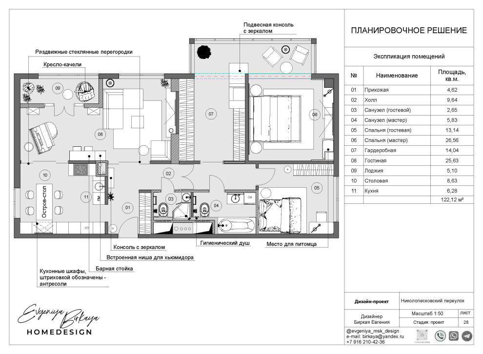
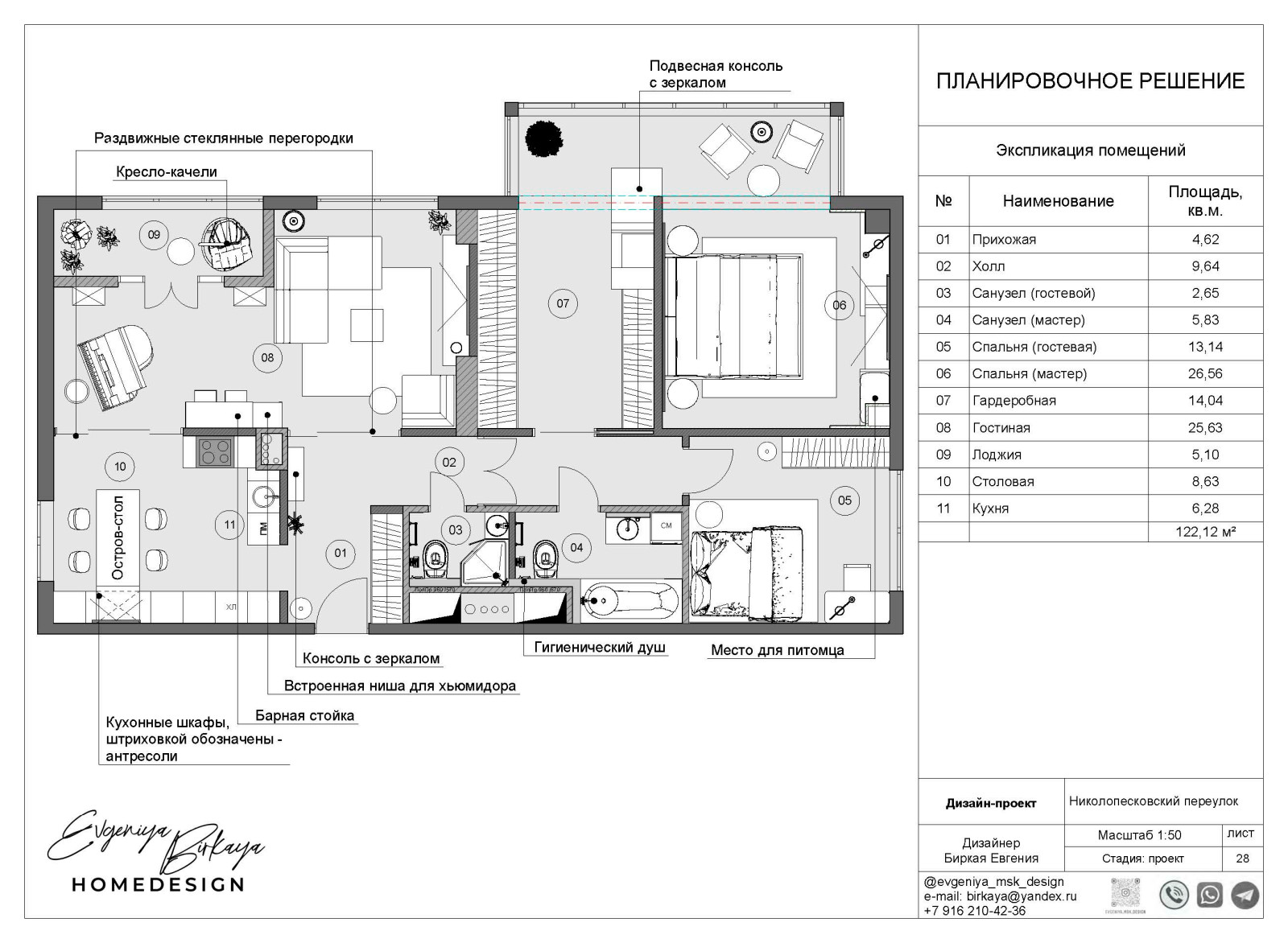
Квартира для молодого музыканта и его невесты. Есть питомец - собака породы Кане Корсо. Стиль - современная эклектика с колониальными нотками. . . Квартира разделена на приватную и гостевую части. Гостевая часть - кухня, столовая, гостиная - объединенное пространство + гостевой санузел. Приватная часть - мастер-спальня, гардеробная, гостевая спальня, легко трансформирующаяся в детскую, ванная комната.
Год реализации: 2020
г. Москва, Николопесковский Малый переулок, Центральный административный округ
19 фотографий



















