Малевич - ничего лишнего.
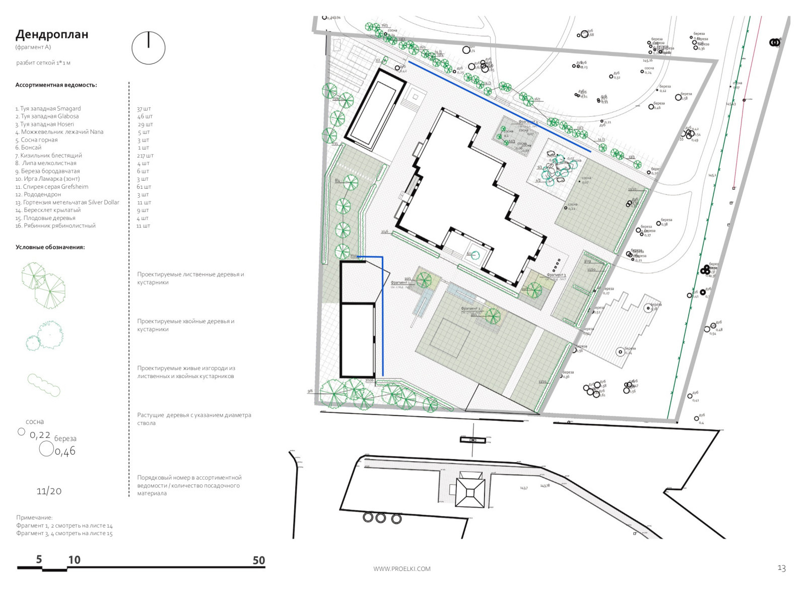
Вдохновление для этого сада мы черпали из картины Малевича «Супрематическая композиция». Геометрические фигуры в виде приподнятых клумб и водоемов с изливами. Минимальный ассортимент растений, строгие линии посадок, крупноформатные плиты мощения. . . Общая площадь участка 1.5 Га. Территория поделена на две зоны. Основной сад - современное благоустроенное пространство без лишней визуальной нагрузки в стиле минимализм. И лесная зона - естественная природная среда с комплексом bbq, до которой можно добраться на гольф-каре.
Год реализации: 2022
21 фотография





















