ЛОМАЕМ СТЕРЕОТИПЫ
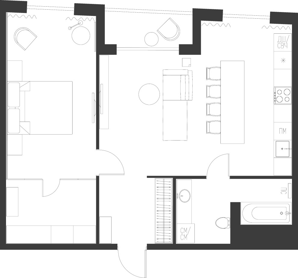
В "Re Space" всегда рады принять новый вызов и помочь клиенту создать свое пространство. . . Для разработки дизайн-проекта апартаментов обратилась творческая Заказчица: арт-директор и гейм-дизайнер. . Запрос: создание брутального, но уютного, практичного и просторного интерьера. . Цель: соблюдать концепцию work-life balance и встречаться с друзьями за бокалом вина. . . Брутальность и уют . . Темные тона отражают элегантность и внутреннюю силу. Они идеально подошли для создания брутального стиля. . Мебель и декор в стиле природных элементов и натуральная раскраска создают уют. Такой интерьер напоминает лес после дождя. . Интеграция “зеленого кабанчика” немного разбавила всю серьезность проекта. . И нет, это не какое-то чудо-животное, а очаровательная плитка прямоугольной формы, в данном случае изумрудного цвета. . . Простор . . Как обеспечить гармоничное сочетание большой зоны отдыха и пространства? В такие моменты хочется воспользоваться магией расширения, но пока единственное решение - это создать соответствующий дизайн. . . В этих апартаментах изначально была кухня-гостинная, поэтому мы спроектировали общее и связанное пространство. . А для оптимизации места на кухне был размещен кухонный остров - это 3 в 1: поверхность для готовки, трапезы и встреч с друзьями, где поместятся все! . . Практичность . . Ключевой момент практичности помещения - использование подходящих материалов. Мы выбрали легко моющиеся и гладкие поверхности, чтобы уменьшить хлопоты Заказчицы. . . Проект дизайна выдерживает концепцию work-life balance. . Он сочетает воздушность и элегантность с силой и стилем, не добавляя ничего лишнего. . . Чтобы создать пространство для жизни, отражающее вашу индивидуальность - приходите в RE SPACE ARCH.
18 фотографий



















