Лофт с лестницей – кинозалом в Manhattan House
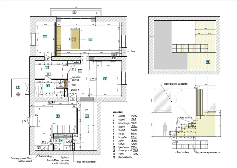
Проект жилого лофта в историческом здании 30-х годов в Москве (ЖК Manhattan House) . . Минималистичный теплый интерьер с холлом кинозалом. . В первом блоке, двухсветном пространстве холла, расположена деревянная лестница, ведущая на антресоль, где находятся места для просмотра кино, и гостевой миниспальней, скрытой за рейчатой перегородкой. . . Во втором блоке находится кабинет-гостиная со стеклянной перегородкой, гостевым санузлом и коридором, ведущим в хозяйский блок, в котором есть спальня с кроватью, и светящимся деревянным изголовьем, ванная комната с искусственным окном и медной раритетной ванной, а так же проходная гардеробная. . . И наконец, в третьем блоке лофта, находится кухня-гостиная с островной кухней и рейчатой конструкцией над ней, служащей одновременно коробом для вытяжки, полками с подсветкой, для хранения винных бутылок и бокалов. . . Пол набран дубовыми планками 30 см и 100 см длинны, со сбивкой, по мотивам тканного ковра. . Общая площадь 150 кв. метров .
12 фотографий













