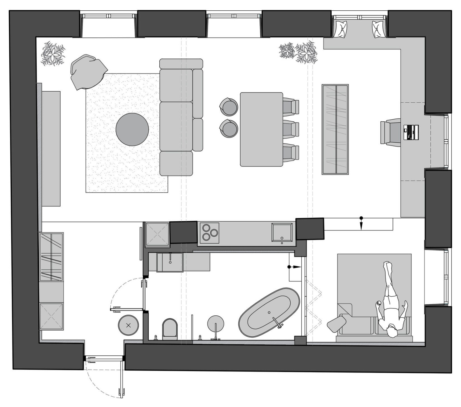
Квартира расположена в центральной части города Омска в доме 1950 года постройки. Угловое расположение квартиры в парадной, высокие потолки, пять больших окон с панорамным видом на закат - все это непременно достоинства квартиры. . . Заказчик был готов к смелым решениям и максимально открытой организации пространства, поэтому планировочное решение представляет собой множественное функциональное зонирование, а проходная ванная комната завершила идею круговой планировки, тем самым добавив дополнительные сценарии передвижения по квартире. . . В качестве основного типа отделки было принято решение оставить существующую кирпичную кладку и оригинальные бетонные балки перекрытия. Обязательное наличие стены для проектора задало идею повторения фальшь стен в зоне прихожей, ванной и спальне, и тем самым облегчило тяжесть от кирпича и придало интерьеру современный вид, отличный от привычного восприятия кирпичных стен в контексте стиля лофт. Вокруг окон применен эффект сбитой штукатурки, подчеркивающий геометрию арочных оконных проемов. . Относительной ванной комнаты у заказчика также были особые пожелания: постараться приблизиться к балийским и природным мотивам. Все это отражено в открытой душевой, отдельно стоящей ванне и объединённое пространство со спальней, где в качестве кровати используется подиум и вложенный в него матрас. В качестве отделки стен ванной комнаты был использован микроцемент, а в зоне туалета и раковины черный фактурный керамогранит. . . Особое внимание было уделено электрике, так как заказчиком было озвучено пожелание: "множество разных групп включения с возможностью управления ими с разных мест". Разнообразные сценарии включения, светодиодные подсветки фальшь стен, функциональный свет, подсветка стеклянных витрин, невправленный свет в зоне гостиной и обеденного стола, розетки и выключатели незаметно выведены на кирпичные стены и мебель.
29 фотографий





























