logo

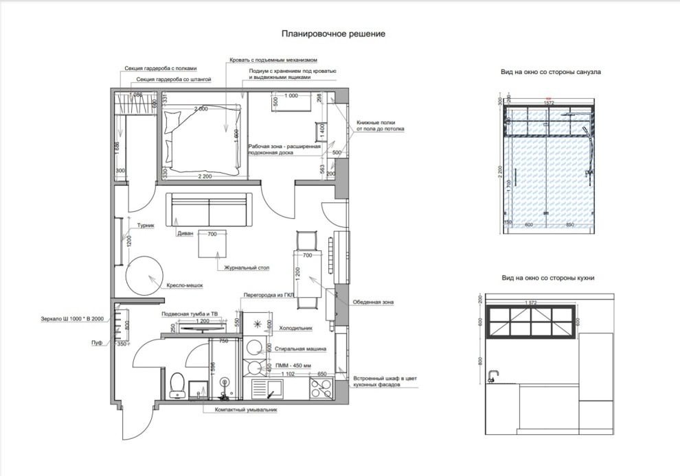
Современный дизайн с элементами лофта. Старый фонд, хрущевка

Год реализации: 2023
Стоимость проектирования: 34 999
г. Екатеринбург
photo

13 фотографий

Unnamed Photo
Unnamed Photo
Unnamed Photo
Unnamed Photo
Unnamed Photo
Unnamed Photo
Unnamed Photo
Unnamed Photo
Unnamed Photo
Unnamed Photo
Unnamed Photo
Unnamed Photo
Unnamed Photo
Unnamed Photo
Unnamed Photo
Unnamed Photo
Unnamed Photo
Unnamed Photo
Unnamed Photo
Unnamed Photo
Unnamed Photo
Unnamed Photo
Unnamed Photo
Unnamed Photo
Unnamed Photo
Unnamed Photo
Фоновое изображение профиля Анастасия Сапегина
Фото профиля Анастасия Сапегина

Анастасия Сапегина

Дизайнеры интерьера