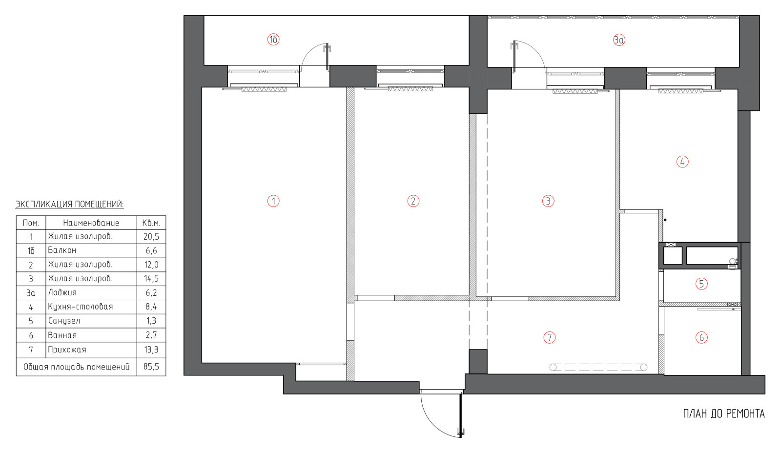
ЛЕДЕНЦЫ | LOLLIPOPS project | 83.2 metres
Притягательный дизайн трехкомнатной квартиры (83 м.кв.) с повторяющимися кругами и геометрическими формами был создан для молодой семьи. Мы считаем, что в любом пространстве важно работать не только с функциональностью, но и с цветом и формой. Наш любимый приём - разделение пространства не перегородками, а цветовыми объёмами. . Так, светлая прихожая с контрастным синим акцентом отделена от основной части квартиры полупрозрачным сетчатым панно с геометрической композицией. А терракотовый холл огибает зелёная линия плинтуса, уводящая нас в просторную гостиную. Зелёный объём зоны отдыха подчёркнут световым ритмом на стене. И нам, бесспорно, удалось избавиться от «клеточного» деления пространства, вдохнув в него много воздуха. .
27 фотографий



























