Квартира - "зефирка" для супружеской пары
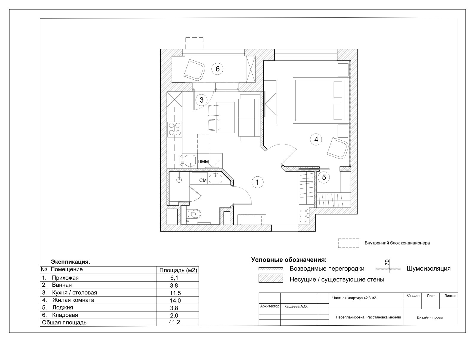
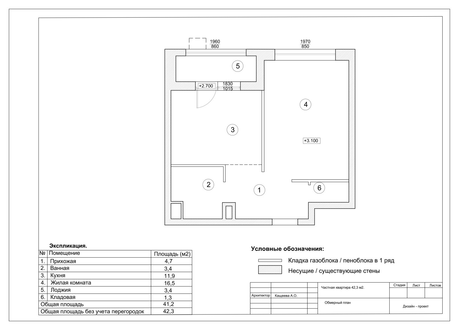
Владельцы этой однокомнатной квартиры в Москве — семейная пара средних лет. По профессии они музыканты и также преподают. У них большая семья, но все живут отдельно. Квартиру покупали для себя, с перспективой на будущее и возможность оставить ее внукам. Среди главных пожеланий: изолированная спальня с кроватью, диванчик на кухне, который заменял бы гостиную зону, хранение и отдельная гардеробная. Нужно было открытое, воздушное и светлое пространство. . . Перепланировка . Квартира представляла собой стандартную однушку с отдельной кухней, комнатой, ванной и маленькой кладовой в прихожей. Застройщик сдавал ее без перегородок, но мокрые зоны все равно были определены. Перепланировку сделали для того, чтобы выполнить пожелания хозяев по проекту. Так, отделили спальню, присоединив к ней часть прихожей, чтобы найти место под гардеробную. Кухню и прихожую объединили в общее пространство, не стали выстраивать перегородки и устанавливать двери. Это помогло визуально расширить комнаты. Ванную увеличили за счет прихожей, чтобы с комфортом разместить душевую кабину, сантехнику и систему хранения. . . Фотограф: Мария Иринархова . . Отделочные и декор: . Пол: керамогранит Vives . Стены: краска Little Greene . Мебель: кухонный гарнитур Archi-Form, . диван выполнен на заказ MarkoKraus.com . Сантехника: смеситель и мойка Blanco . Карнизы: Decomaster . Освещение: Sylcom . Текстиль: Decotex . Пол спальная: паркет Tarkett . Дверь: зеркальная дверь «Московский зеркально-стекольный завод» . Мебель: кровать Mebelvia, кресло mebhome.ru, комод и тумбы сделаны на заказ в частной мастерской . Подушки и покрывало Togas . Стены и пол в ванной: керамогранит Atlas Concorde . Сантехника: инсталляция, унитаз и смесители Grohe . Перегородка(и) и зеркало: «Московский зеркально-стекольный завод» .
30 фотографий






























