Квартира в ЖК Водный
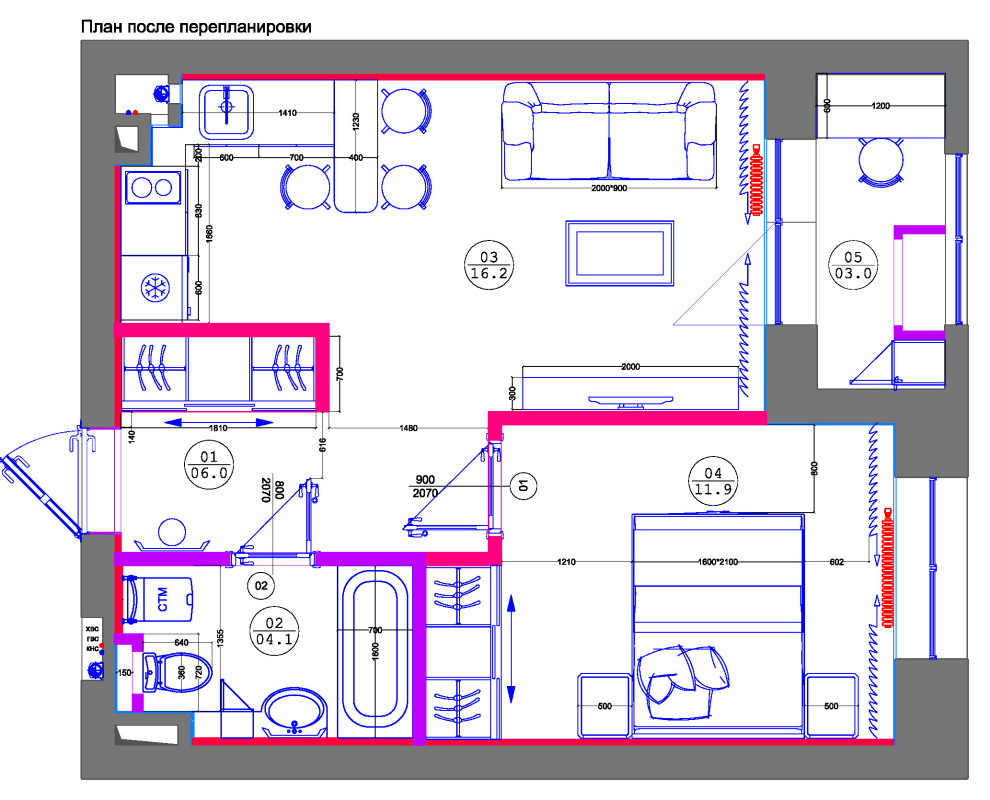
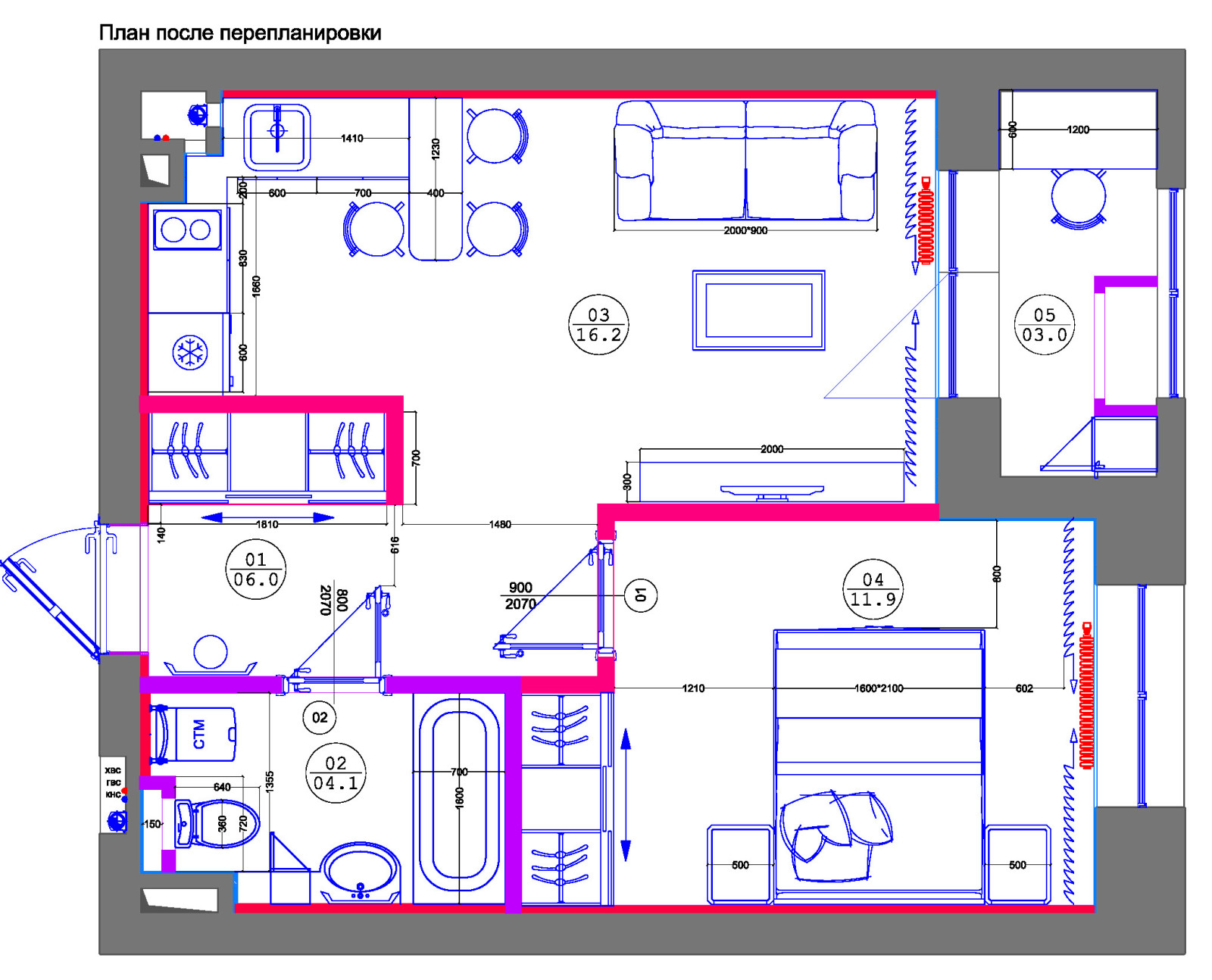
Двухкомнатная квартира для молодого человека, студента. . Очень быстрый проект и исполнение. . Все материалы из наличия, мебель ИКЕА, ОБИ, HOFF. .
Год реализации: 2018
г. Москва, Центральный административный округ
10 фотографий
Двухкомнатная квартира для молодого человека, студента. . Очень быстрый проект и исполнение. . Все материалы из наличия, мебель ИКЕА, ОБИ, HOFF. .
10 фотографий
