Квартира в ЖК Версис

Год реализации: 2016
Стоимость проектирования: 12 250 000
photo

12 фотографий

Квартира в ЖК Версис
Квартира в ЖК Версис
Квартира в ЖК Версис
Квартира в ЖК Версис
Квартира в ЖК Версис
Квартира в ЖК Версис
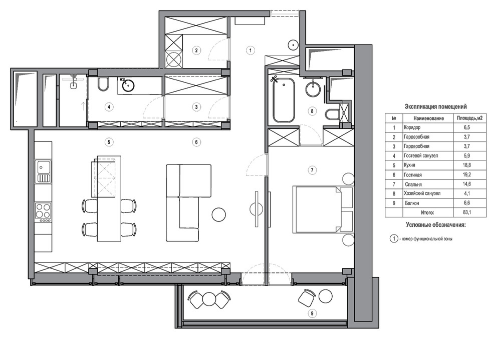
Планировка квартиры
Планировка квартиры
Гостевой санузел
Гостевой санузел
Хозяйский санузел
Хозяйский санузел
Квартира в ЖК Версис
Квартира в ЖК Версис
Гостиная
Гостиная
Кухня
Кухня
Гостиная
Гостиная
Гостиная
Гостиная
Прихожая
Прихожая
Фоновое изображение профиля Студия Петровой & Андроновой
Фото профиля Студия Петровой & Андроновой

Контакты

г. Москва