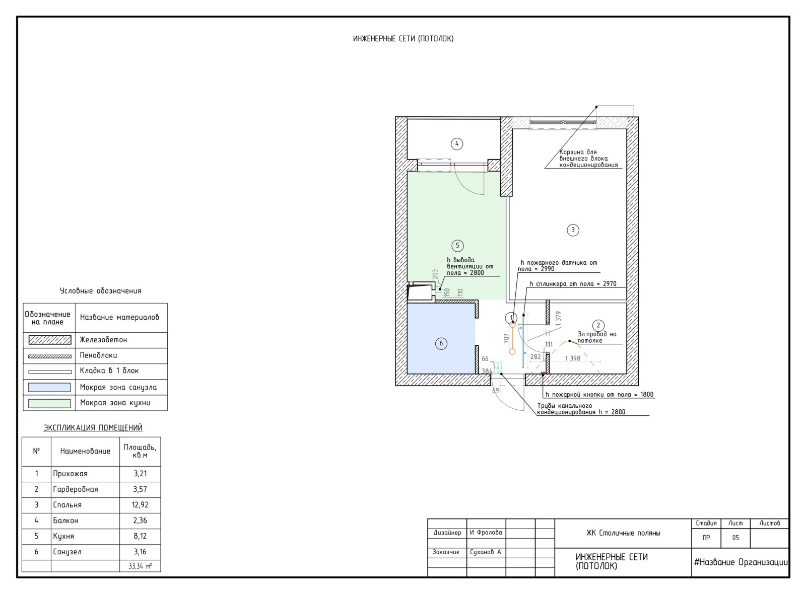
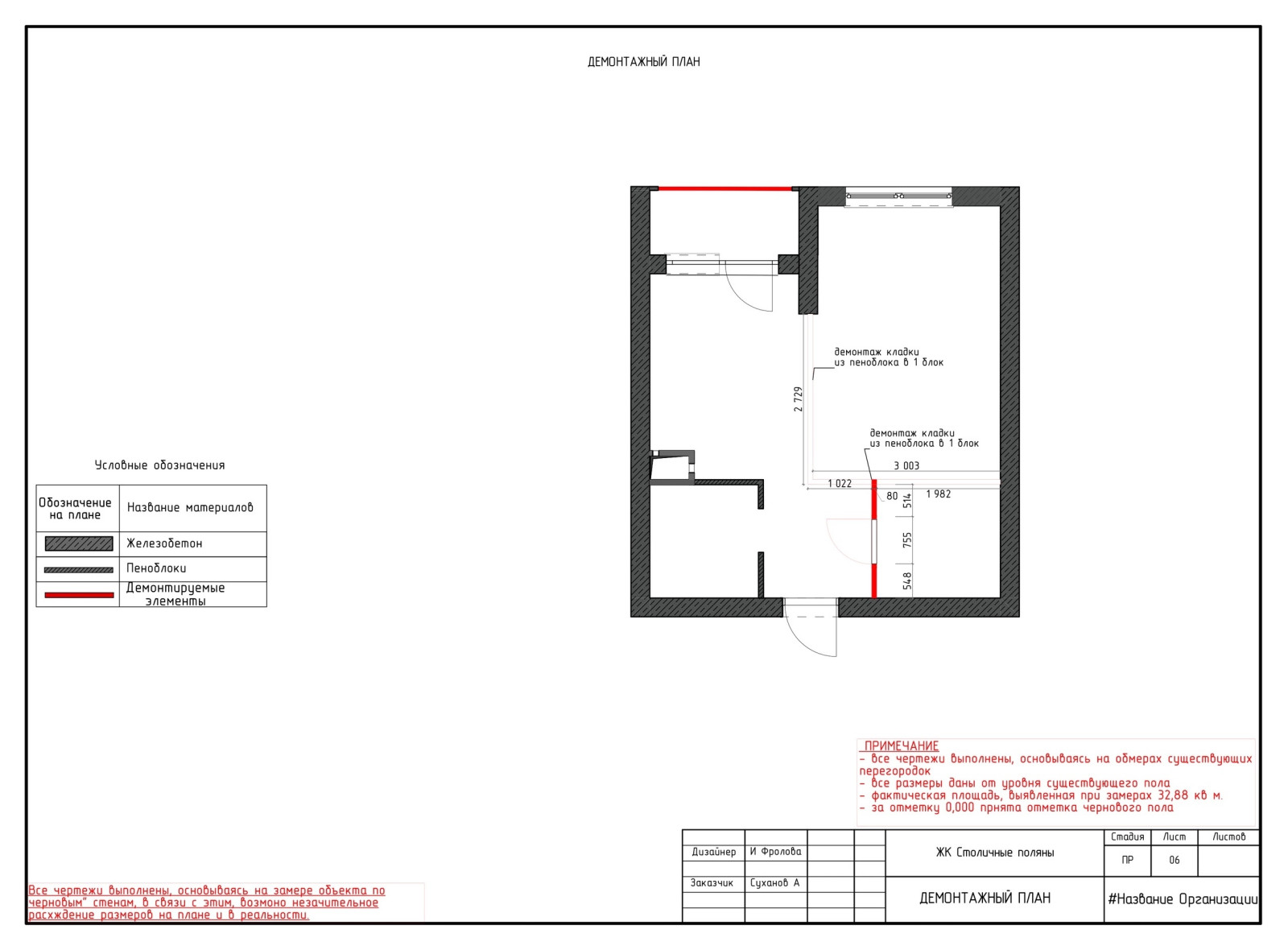
Квартира в ЖК «Столичные поляны»
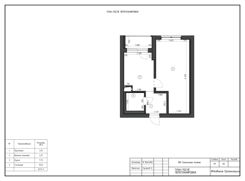
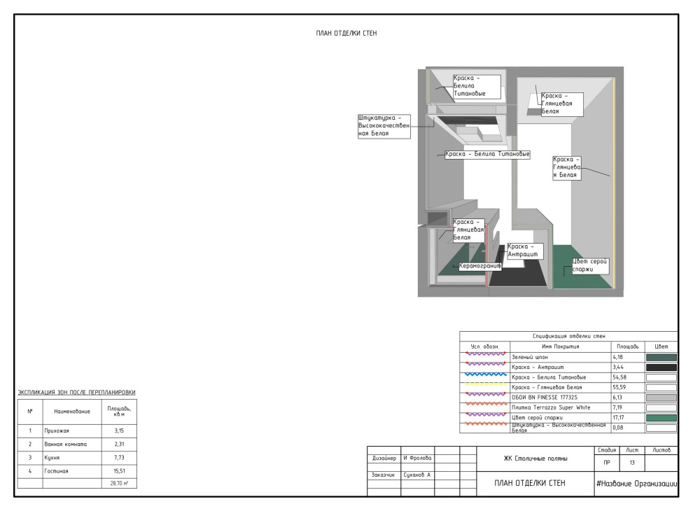
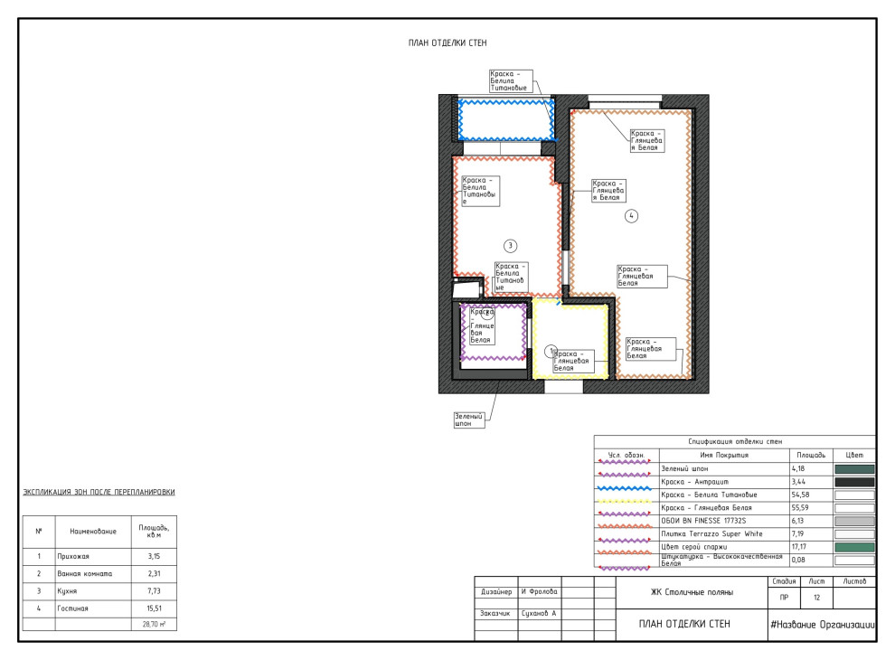
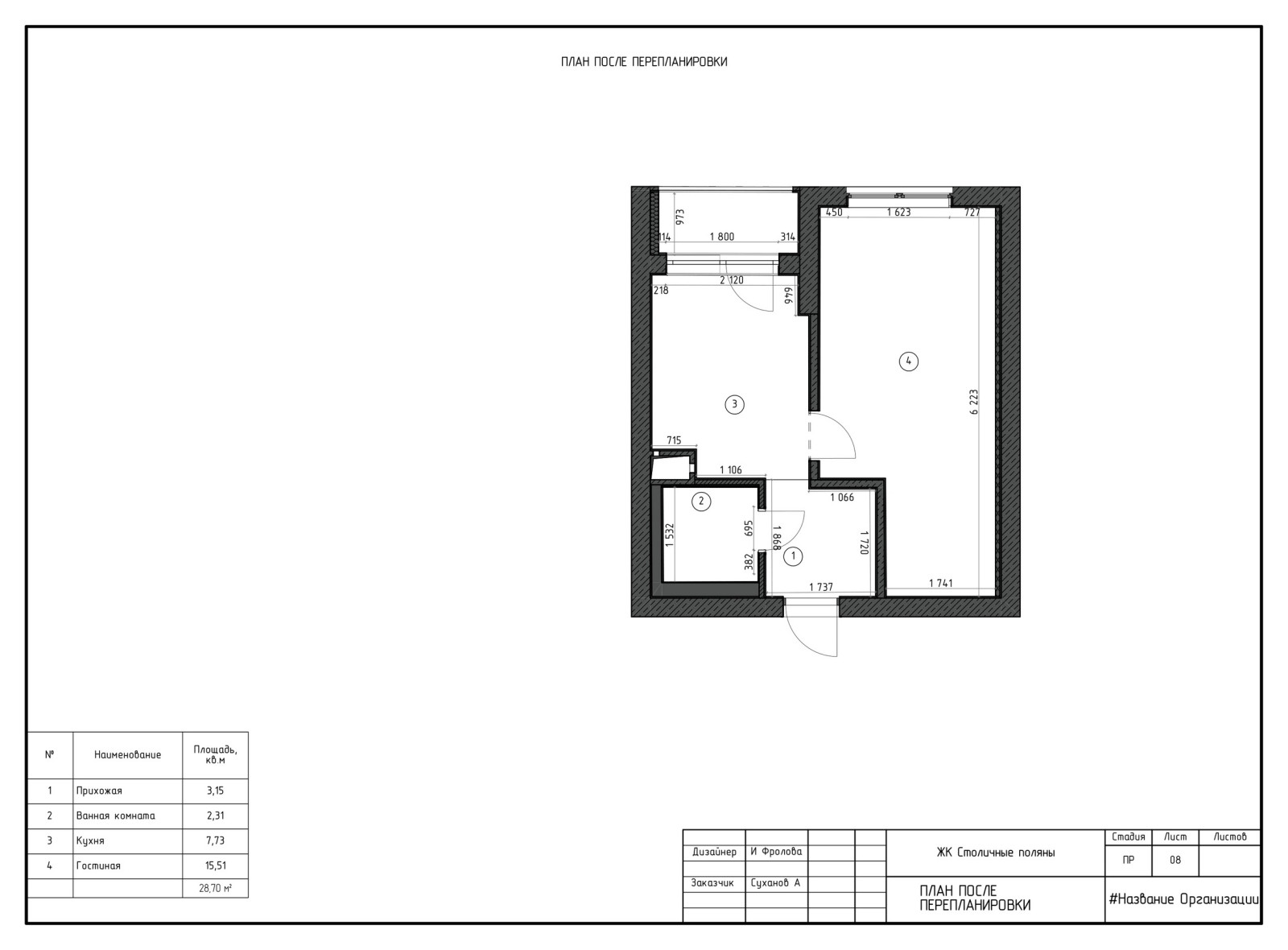
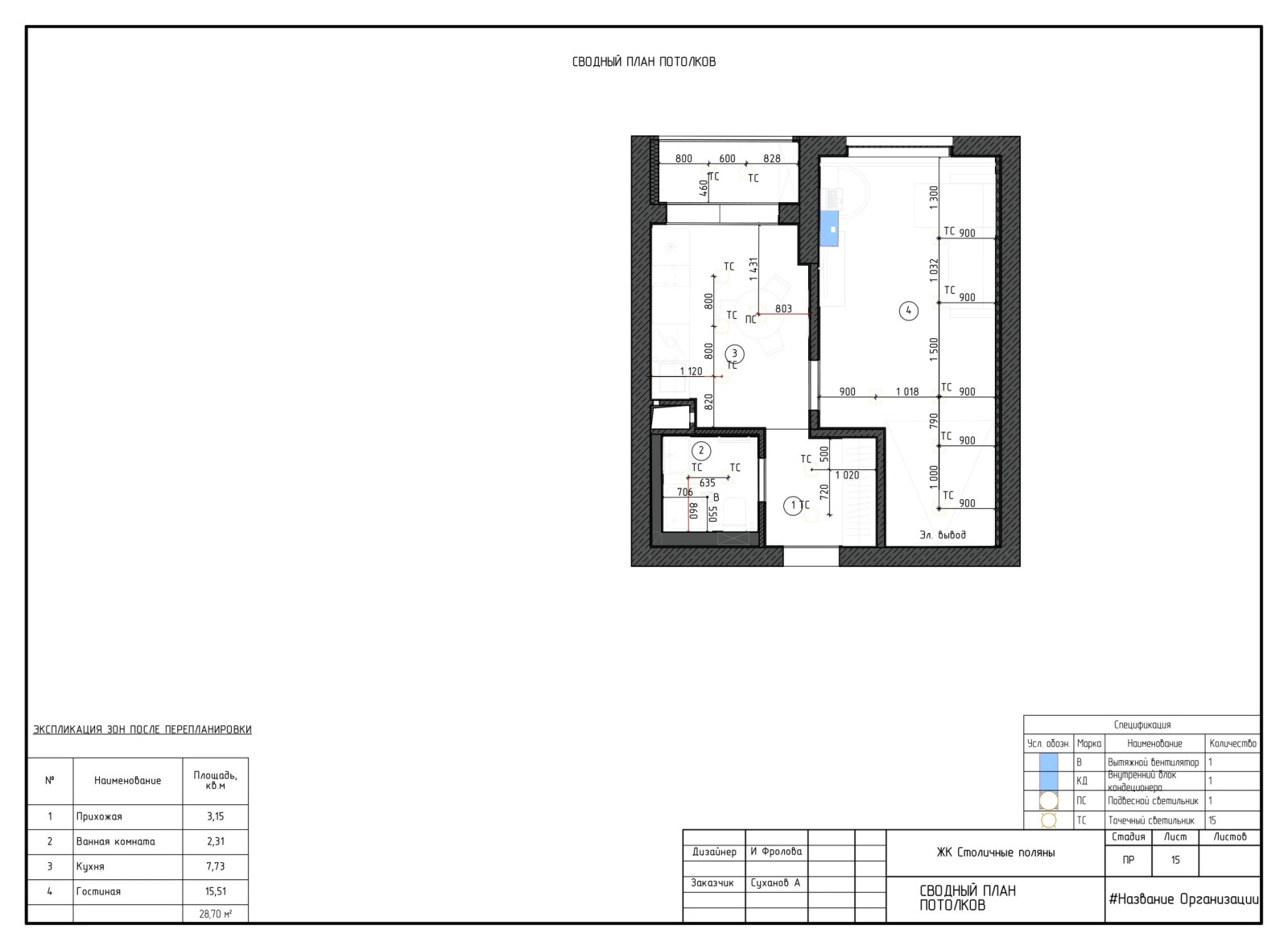
Квартира находится в современном районе Москвы в доме 2019 года. . . Площадь квартиры 33 м² вмещало одну комнату, гардеробную, кухню и санузел. . . Основной пожелание заказчика - выделить отдельное спальное место. . . Было приятно решение вместо гардеробной спроектировать спальное место, ведь для полноценного отдыха необходима кровать с хорошим матрасом. Шкаф разместили в прихожей (у заказчика немного вещей). . . Удалось разместить рабочее место, тк иногда заказчик работает удаленно. . . Использовались светлые оттенки в отделке квартиры: зеленый, белый, бежевый. .
Год реализации: 2022
Стоимость проектирования: 1 050 000 ₽
г. Москва
25 фотографий


























