Квартира в ЖК Ривер Парк
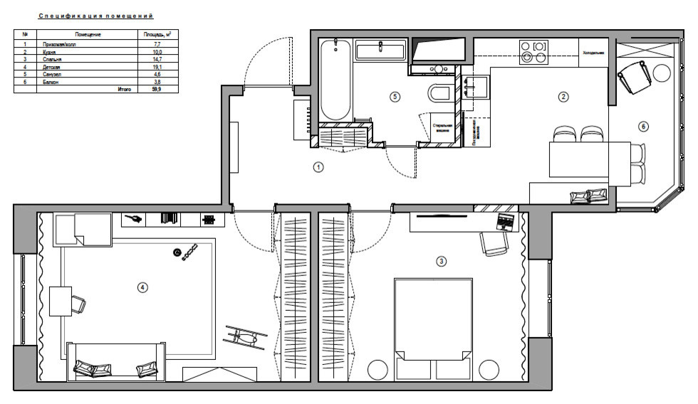
Уже на этапе выбора квартиры у нашей заказчицы, молодой современной мамы, в голове был четкий образ будущего жилья, для воплощения которого мы предложили подходящего дизайнера. Как только сделка состоялась, сразу началась работа над проектом, а уже через месяц на площадку вышли строители. . Были предложены несколько вариантов планировки, но в работу пошел тот, при котором не затрагивались стены от застройщика. Единственным серьезным изменением стало присоединение балкона к кухне. . Заказчица довольно много путешествует по работе и ей близок скандинавский стиль, который и решили положить в основу всего проекта. Квартира расположена на 3 этаже, перед домом нет высоких деревьев, но хотелось добавить света – поэтому использованы в основном светлые материалы (в отделке и мебели). Контрастная синяя стена в спальне напоминает о морском отдыхе и настраивает на умиротворение в конце насыщенных рабочих дней. Вторая спальня выполняет сейчас больше роль детской игровой, в ней выполнена отделка и установлено освещение (на фото в прихожей можно увидеть отражение кресла и части светильника из этой комнаты). Когда ребенок подрастет, в ней можно будет устроить полноценную детскую, ничего не меняя, только добавив мебели и декора. . В проекте используется сантехника Villeroy boch, мебель Икеа, бытовая техника Bosch, освещение Basicdecor, Designboom и Loftdesign. Стулья на кухню и кресло в детской – были куплены на антикварной распродаже. Столярные столешницы в кухне и кориановая столешница в ванной – выполнены индивидуально для данного проекта.
11 фотографий










