Квартира в ЖК Премьер Палас
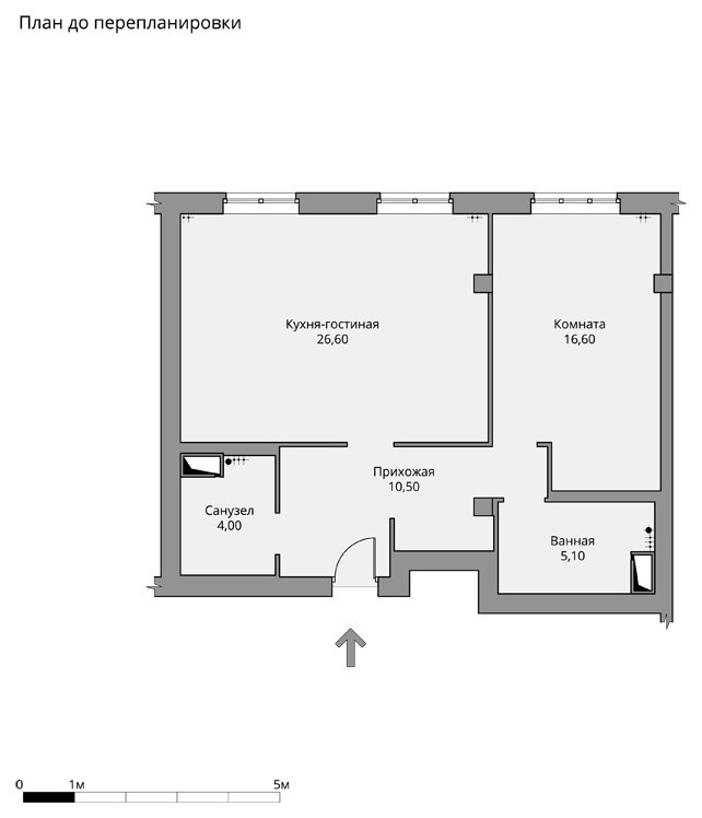
Квартира площадью 63 м.кв., для девушки. Заказчица поставила задачу разработать дизайн интерьера, который воспринимался бы респектабельно и благородно, но без излишней помпезности и вычурности.
Год реализации: 2017
г. Санкт-Петербург, 50 Пионерская улица
13 фотографий













