квартира в Жк Oxygen
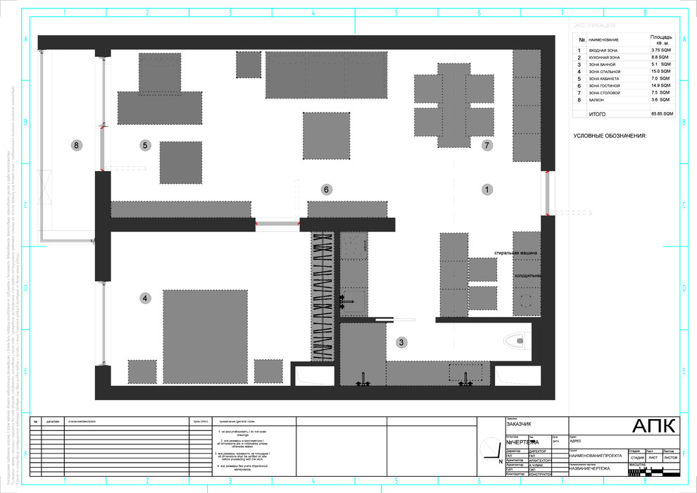
Проект был реализован в конце 2013-начале 2014 года. Изначально это была однокомнатная квартира 62 м2, которая за счет переноса кухни и эргономичного расположения мебели превратилась в небольшую студию с рабочей зоной и отдельной спальней.
Год реализации: 2015
18 фотографий

















